PMO池袋の貸事務所・賃貸オフィス情報
PMO池袋の貸事務所・賃貸オフィス情報
PMO池袋
- エレベーター
- 個別空調
- 新耐震基準
PMO池袋の空室フロアリスト
| 階数 | 面積 | 賃料+共益費 | 保証金 | 入居時期 | 更新料 | 償却費 | 礼金 | 検討 | 平面図 | 詳細 |
|---|---|---|---|---|---|---|---|---|---|---|
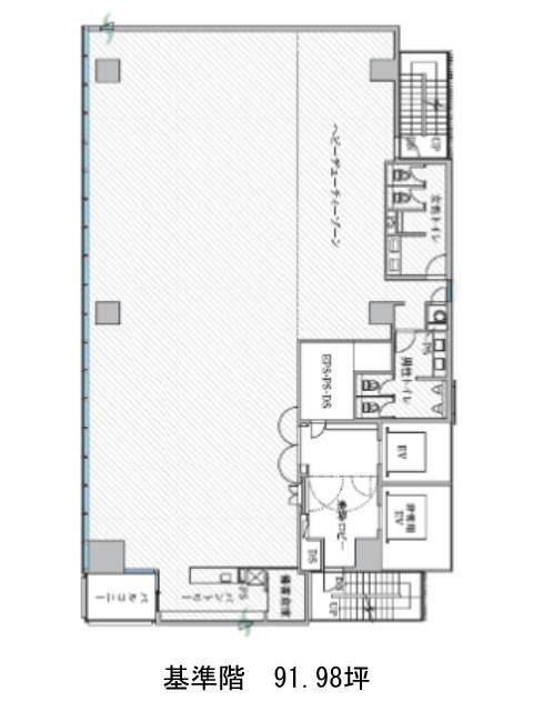
| 12 | 91.98坪 |
応相談応相談
|
応相談
|
2026年6月上旬 | なし | なし | なし |
PMO池袋の物件情報
PMO池袋(豊島区東池袋)は東池袋駅徒歩4分、池袋駅徒歩5分、東池袋四丁目駅徒歩7分の賃貸オフィスです。
PMO池袋のアクセス
PMO池袋の条件に近い物件
PMO池袋の募集終了区画
| 階数 | 面積 | 賃料+共益費 | 保証金 | 入居時期 | 更新料 | 償却費 | 礼金 | 平面図 | 詳細 |
|---|---|---|---|---|---|---|---|---|---|
| 2 | 91.98坪 | − | − | 募集終了 | − | − | − | ||
| 3 | 91.98坪 | − | − | 募集終了 | − | − | − | ||
| 4 | 91.98坪 | − | − | 募集終了 | − | − | − | ||
| 5 | 91.98坪 | − | − | 募集終了 | − | − | − | ||
| 6 | 91.98坪 | − | − | 募集終了 | − | − | − | ||
| 7 | 91.98坪 | − | − | 募集終了 | − | − | − | ||
| 8 | 91.98坪 | − | − | 募集終了 | − | − | − | ||
| 9 | 91.98坪 | − | − | 募集終了 | − | − | − | ||
| 10 | 91.98坪 | − | − | 募集終了 | − | − | − | ||
| 11 | 91.98坪 | − | − | 募集終了 | − | − | − |


