佐伯池袋ビルの貸事務所・賃貸オフィス情報
佐伯池袋ビルの貸事務所・賃貸オフィス情報
佐伯池袋ビル
- エレベーター
- 耐震確認中
佐伯池袋ビルの空室フロアリスト
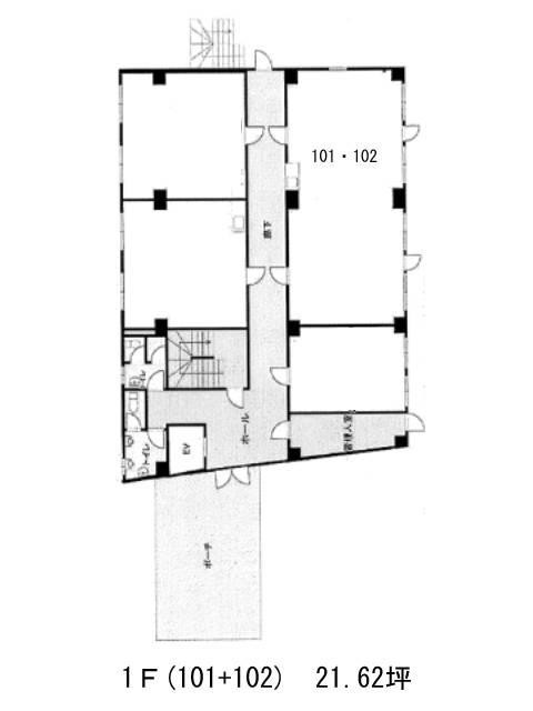
| 階数 | 面積 | 賃料+共益費 | 保証金 | 入居時期 | 更新料 | 償却費 | 礼金 | 検討 | 平面図 | 詳細 |
|---|---|---|---|---|---|---|---|---|---|---|
| 1 | 21.62坪 |
332,948円15,400円/坪
|
142万円
|
相談 | 新1ケ月 | 2ケ月 | なし |
佐伯池袋ビルの物件情報
佐伯池袋ビル(豊島区南池袋)は池袋駅徒歩5分、東池袋駅徒歩6分、都電雑司ヶ谷駅徒歩7分の賃貸オフィスです。
佐伯池袋ビルのアクセス
佐伯池袋ビルの募集終了区画
| 階数 | 面積 | 賃料+共益費 | 保証金 | 入居時期 | 更新料 | 償却費 | 礼金 | 平面図 | 詳細 |
|---|---|---|---|---|---|---|---|---|---|
| 1 | 51.73坪 | − | − | 募集終了 | − | − | − | ||
| 1 | 30.08坪 | − | − | 募集終了 | − | − | − | ||
| 1 | 30.08坪 | − | − | 募集終了 | − | − | − | ||
| 1 | 30.08坪 | − | − | 募集終了 | − | − | − |


