青葉台石橋ビルの貸事務所・賃貸オフィス情報
青葉台石橋ビルの貸事務所・賃貸オフィス情報
青葉台石橋ビル
- エレベーター
- 個別空調
- 駐車場
- 新耐震基準
青葉台石橋ビルの空室フロアリスト
| 階数 | 面積 | 賃料+共益費 | 保証金 | 入居時期 | 更新料 | 償却費 | 礼金 | 検討 | 平面図 | 詳細 |
|---|---|---|---|---|---|---|---|---|---|---|
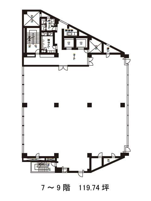
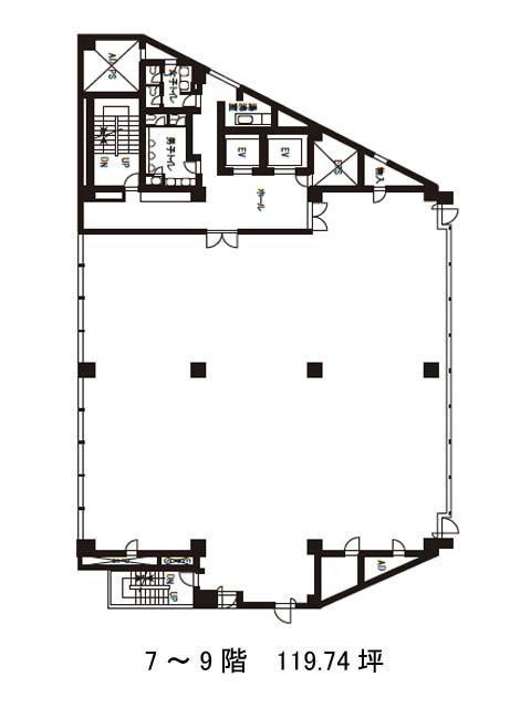
| 8 | 119.74坪 |
2,370,852円19,800円/坪
|
2011万円
|
即 | なし | なし | なし |
青葉台石橋ビルの物件情報
青葉台石橋ビル(目黒区青葉台)は神泉駅徒歩7分、渋谷駅徒歩11分、池尻大橋駅徒歩12分の賃貸オフィスです。
青葉台石橋ビルのアクセス
青葉台石橋ビルの条件に近い物件
青葉台石橋ビルの募集終了区画
| 階数 | 面積 | 賃料+共益費 | 保証金 | 入居時期 | 更新料 | 償却費 | 礼金 | 平面図 | 詳細 |
|---|---|---|---|---|---|---|---|---|---|
| 1 | 57.78坪 | − | − | 募集終了 | − | − | − | ||
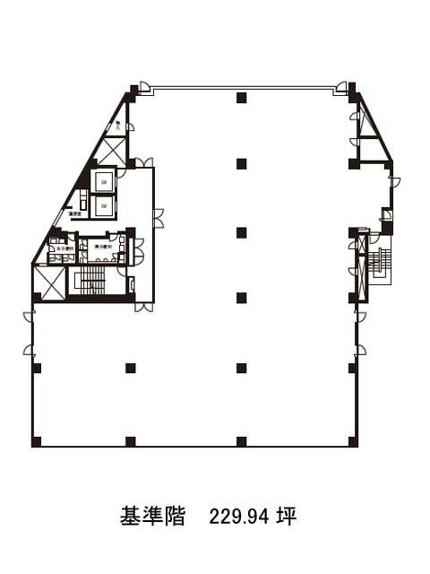
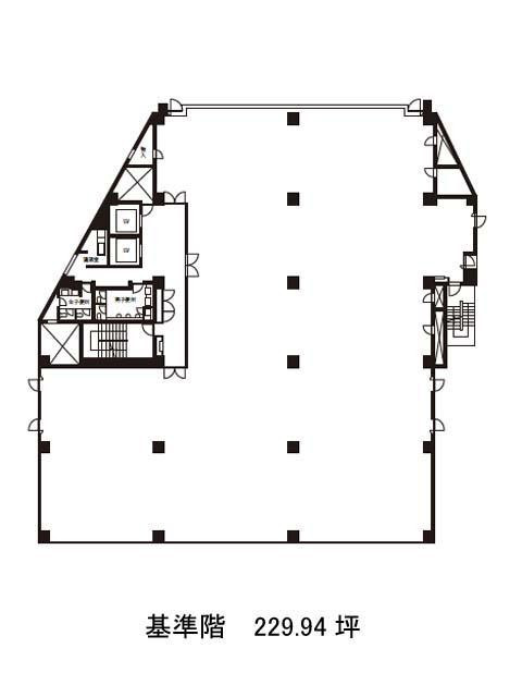
| 2 | 229.94坪 | − | − | 募集終了 | − | − | − | ||
| 6 | 229.74坪 | − | − | 募集終了 | − | − | − | ||
| 7 | 119.74坪 | − | − | 募集終了 | − | − | − | ||
| 9 | 119.74坪 | − | − | 募集終了 | − | − | − |


