フォートレス渋谷の貸事務所・賃貸オフィス情報
フォートレス渋谷の貸事務所・賃貸オフィス情報
フォートレス渋谷
- エレベーター
- 個別空調
- 新耐震基準
フォートレス渋谷の空室フロアリスト
| 階数 | 面積 | 賃料+共益費 | 保証金 | 入居時期 | 更新料 | 償却費 | 礼金 | 検討 | 平面図 | 詳細 |
|---|---|---|---|---|---|---|---|---|---|---|
| 1 | 19.33坪 |
682,000円35,282円/坪
|
180万円
|
即 | 新1ケ月 | なし | 1ケ月 |
フォートレス渋谷の物件情報
フォートレス渋谷(目黒区青葉台)は神泉駅徒歩6分、渋谷駅徒歩11分、池尻大橋駅徒歩12分の賃貸オフィスです。
フォートレス渋谷のアクセス
フォートレス渋谷の募集終了区画
| 階数 | 面積 | 賃料+共益費 | 保証金 | 入居時期 | 更新料 | 償却費 | 礼金 | 平面図 | 詳細 |
|---|---|---|---|---|---|---|---|---|---|
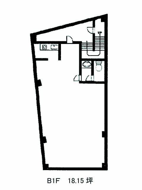
| 地下1 | 18.15坪 | − | − | 募集終了 | − | − | − | ||
| 2 | 21.16坪 | − | − | 募集終了 | − | − | − | ||
| 3 | 21.17坪 | − | − | 募集終了 | − | − | − | ||
| 4 | 21.20坪 | − | − | 募集終了 | − | − | − |


