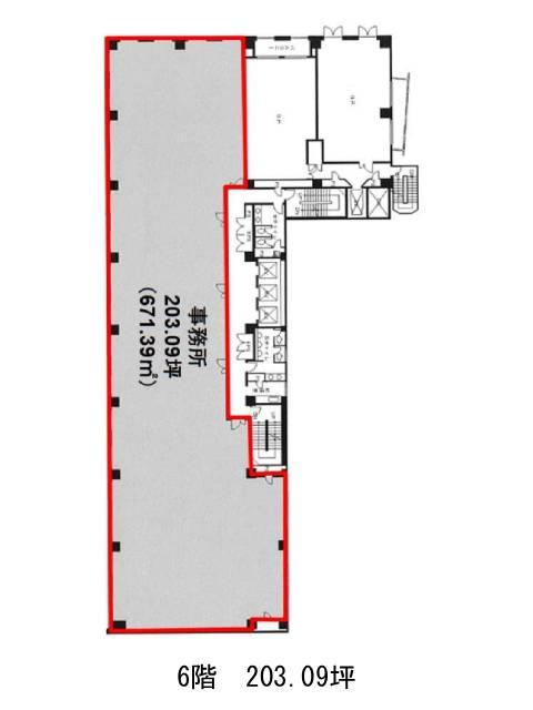
白金台ビル6階の貸事務所・賃貸オフィス情報
白金台ビル6階の賃貸オフィス・貸事務所情報
白金台ビルのフロア情報
募集階数
6階
面積
203.09坪
賃料+共益費
応相談
応相談
保証金
応相談
入居時期
2026年9月上旬
更新料
なし
償却費
なし
礼金
なし
白金台ビル
- エレベーター
- 個別空調
- 男女別トイレ
- 駐車場
- 新耐震基準
白金台ビルのフロア情報
募集階数
6階
面積
203.09坪
賃料+共益費
応相談
応相談
保証金
応相談
入居時期
2026年9月上旬
更新料
なし
償却費
なし
礼金
なし
白金台ビルの物件情報
白金台ビル(港区白金台)は白金台駅徒歩2分、白金高輪駅徒歩11分、高輪台駅徒歩13分の賃貸オフィスです。
白金台ビルのアクセス
白金台ビルのテナント募集中区画
| 階数 | 面積 | 賃料+共益費 | 保証金 | 入居時期 | 検討 | 図面 | 詳細 |
|---|---|---|---|---|---|---|---|
| 4 | 111.62坪 |
応相談応相談
|
応相談
|
2026年5月中旬 | |||
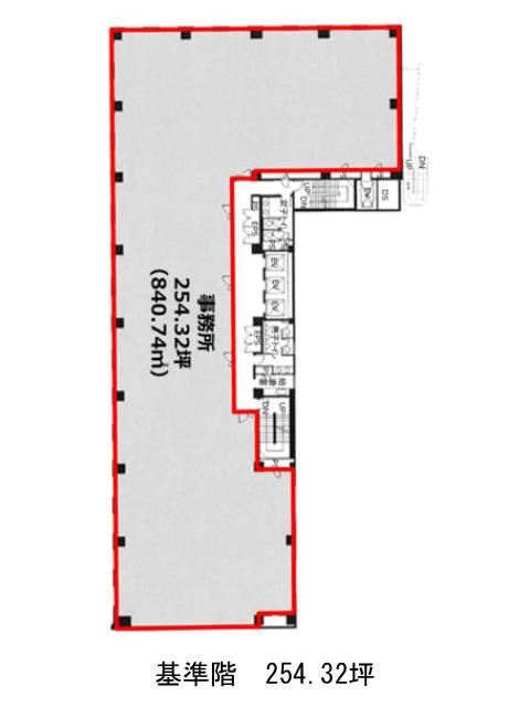
| 5 | 254.32坪 |
応相談応相談
|
応相談
|
2026年5月中旬 | |||
| 6 | 203.09坪 |
応相談応相談
|
応相談
|
2026年9月上旬 |


