アイランドビルディング7階の貸事務所・賃貸オフィス情報
アイランドビルディング7階の賃貸オフィス・貸事務所情報
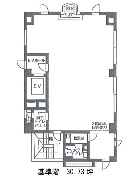
アイランドビルディングのフロア情報
募集階数
7階
面積
30.73坪
賃料+共益費
371,833円
12,100円/坪
保証金
221万円
入居時期
2026年4月中旬
更新料
新1ケ月
償却費
2ケ月
礼金
なし
アイランドビルディング
- エレベーター
- 個別空調
- 男女別トイレ
- 新耐震基準
アイランドビルディングのフロア情報
募集階数
7階
面積
30.73坪
賃料+共益費
371,833円
12,100円/坪
保証金
221万円
入居時期
2026年4月中旬
更新料
新1ケ月
償却費
2ケ月
礼金
なし
アイランドビルディングの物件情報
アイランドビルディング(台東区蔵前)は蔵前駅徒歩2分、浅草橋駅徒歩6分、馬喰町駅徒歩13分の賃貸オフィスです。
アイランドビルディングのアクセス
アイランドビルディングのテナント募集中区画
| 階数 | 面積 | 賃料+共益費 | 保証金 | 入居時期 | 検討 | 図面 | 詳細 |
|---|---|---|---|---|---|---|---|
| 7 | 30.73坪 |
371,833円12,100円/坪
|
221万円
|
2026年4月中旬 |


