キスワイヤビル2階の貸事務所・賃貸オフィス情報
キスワイヤビル2階の賃貸オフィス・貸事務所情報
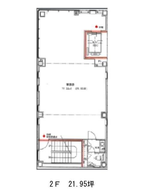
キスワイヤビルのフロア情報
募集階数
2階
面積
21.95坪
賃料+共益費
386,320円
17,600円/坪
保証金
105万円
入居時期
相談
更新料
なし
償却費
1ケ月
礼金
なし
キスワイヤビル
- 物件番号
- 653-00106
- 所在地
- 東京都中央区日本橋大伝馬町4-5
- 竣工年
- 2017年11月
- 規模
- 地上5階
- エレベーター
- 個別空調
- 男女共用トイレ
- 新耐震基準
キスワイヤビルのフロア情報
募集階数
2階
面積
21.95坪
賃料+共益費
386,320円
17,600円/坪
保証金
105万円
入居時期
相談
更新料
なし
償却費
1ケ月
礼金
なし
キスワイヤビルの物件情報
キスワイヤビル(中央区日本橋大伝馬町)は小伝馬町駅徒歩1分、新日本橋駅徒歩5分、馬喰町駅徒歩6分の賃貸オフィスです。
キスワイヤビルのアクセス
キスワイヤビルのテナント募集中区画
| 階数 | 面積 | 賃料+共益費 | 保証金 | 入居時期 | 検討 | 図面 | 詳細 |
|---|---|---|---|---|---|---|---|
| 2 | 21.95坪 |
386,320円17,600円/坪
|
105万円
|
相談 |


