チャンピオンタワービル4階の貸事務所・賃貸オフィス情報
チャンピオンタワービル4階の賃貸オフィス・貸事務所情報
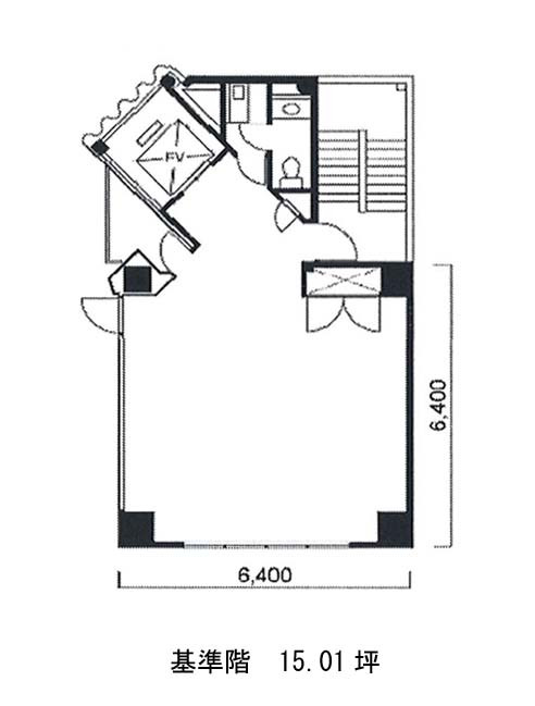
チャンピオンタワービルのフロア情報
募集階数
4階
面積
15.01坪
賃料+共益費
222,899円
14,851円/坪
保証金
108万円
入居時期
2026年4月下旬
更新料
新1ケ月
償却費
1ケ月
礼金
なし
チャンピオンタワービル
- 物件番号
- 657-00056
- 所在地
- 東京都中央区日本橋浜町2-25-2
- 竣工年
- 1992年4月
- 規模
- 地上10階/地下1階
- エレベーター
- 個別空調
- 男女共用トイレ
- 新耐震基準
チャンピオンタワービルのフロア情報
募集階数
4階
面積
15.01坪
賃料+共益費
222,899円
14,851円/坪
保証金
108万円
入居時期
2026年4月下旬
更新料
新1ケ月
償却費
1ケ月
礼金
なし
チャンピオンタワービルの物件情報
チャンピオンタワービル(中央区日本橋浜町)は浜町駅徒歩3分、水天宮前駅徒歩7分、人形町駅徒歩8分の賃貸オフィスです。
チャンピオンタワービルのアクセス
チャンピオンタワービルのテナント募集中区画
| 階数 | 面積 | 賃料+共益費 | 保証金 | 入居時期 | 検討 | 図面 | 詳細 |
|---|---|---|---|---|---|---|---|
| 4 | 15.01坪 |
222,899円14,851円/坪
|
108万円
|
2026年4月下旬 |


