スタッフが仲良くミーティングしている 泡 泡

STAFF BLOG

スタッフが仲良くミーティングしている
微笑みながら仕事をする女性 泡

視認性・快適性・機能性良好|【麴町駅3分】ハイグレード賃貸オフィス《ACN麹町ビル》

ACN麹町ビルのメイン画像

麹町駅から徒歩3分、視認性の高い新宿通り沿いに建つ「ACN麹町ビル」。金融・士業・コンサルなどのオフィスが多く集まるエリアです。
コンクリート打ちっぱなしとガラスを組み合わせたシャープな外観は、現代的で洗練された企業イメージを演出し来訪者にも好印象を与えます。
周辺には飲食店やコンビニエンスストアも充実しており、就業環境としての利便性も高いロケーションです。

この物件の関連画像を見る

OTHER PHOTO
ACN麹町ビルのエントランス エントランス
ACN麹町ビルのエントランス エントランス
ACN麹町ビルのホール ホール
ACN麹町ビルのエレベーター エレベーター

この物件の間取り情報を見る

FLOOR MAP

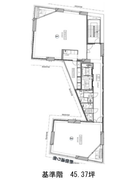
基準階45.37坪の柱のないすっきりとした空間は2つの区画に分かれており、それぞれが独立性を持って使用可能な設計です。
レイアウトの自由度が高いのも特徴で、執務・会議・来客エリアを効率的にゾーニングできます。
男女別トイレと給湯室は室外中央共用部にまとめられ、貸室内の有効面積を最大限活かせる構成。エレベーター2基や広々としたEVホールにより、動線もスムーズです。

建物情報の詳細を確認する

INFORMATION

名称ACN麹町ビル

住所東京都千代田区麹町4-4-4

竣工2022年9月

規模地上12階/地下1階

構造RC造

交通東京メトロ有楽町線「麴町駅」徒歩3分

設備等エレベーター2台・OAフロア・個別空調・男女別トイレ・機械警備

印象に残る外観と空間|ACN麹町ビルが選ばれる理由

「ACN麹町ビル」は、麹町駅から徒歩3分。新宿通り沿いに建ち、コンクリート打ち放しの外観と全面ガラス面が視認性と先進性を兼ね備えています。
周囲には士業、IT、コンサル企業などが集まり、落ち着いたビジネス街ならではの信頼感も魅力です。

基準階は45.37坪、2区画構成でレイアウトの自由度が魅力。ワンフロアの中で執務エリア、会議室、受付などを柔軟に設計可能で、様々な使い方に対応できます。 
男女別トイレ・給湯室は室外中央共用部にまとめられており、専有部はレイアウトの自由度が高くなっています。
また、エレベーター2基・天井高は3000㎜で、自然光を取り込みながら開放感あふれるオフィス空間を実現できます。

外観の印象や内装の質感を重視し、洗練された環境を整えたい企業におすすめな一棟です。

他のおすすめ物件を見る

OTHER

「CIRCLES日本橋浜町」は2024年7月竣工の三菱地所ブランドによる新築オフィスビル。
都営新宿線・浜町駅から徒歩2分という好アクセスのポジションにあり、「人形町」「馬喰横山」「東日本橋」といった複数駅も徒歩圏内です。
外観はガラスを基調にしたモダンなデザインで、街並みの中でも存在感がありつつ街に溶け込むスタイリッシュさ。周辺には飲食・カフェ・ショッピングスポットも充実しており、働く毎日を後押しします。

2026.01.08 中央区

御成門駅出口すぐ、御成門交差点角地に立つ菱進御成門ビル。2015年竣工の外観はガラスウォールと洗練されたマテリアルで構成されており、通りに映える存在感があります。
1階にコンビニを備え、日常的な利便性も確保。都営三田線「御成門駅」が徒歩1分、他にも「大門」「神谷町」「新橋」など複数駅が使えるアクセスの良さで、通勤・来客ともにストレスが少ない立地です。

2025.12.11 港区