【八丁堀駅徒歩2分】整形コンパクトオフィス|《ビリーヴ新富》
「ビリーヴ新富」は、八丁堀駅徒歩2分という高い利便性を誇る立地。東京駅方面や銀座方面へのアクセスもスムーズです。
ガラス面を多用したファサードはすっきりとした印象で、コンパクトながら視認性も確保。
周辺には飲食店・コンビニ、郵便局が点在し、日常の利便性も良好で、落ち着いたビジネス環境が整っています。
「ビリーヴ新富」は、八丁堀駅徒歩2分という高い利便性を誇る立地。東京駅方面や銀座方面へのアクセスもスムーズです。
ガラス面を多用したファサードはすっきりとした印象で、コンパクトながら視認性も確保。
周辺には飲食店・コンビニ、郵便局が点在し、日常の利便性も良好で、落ち着いたビジネス環境が整っています。
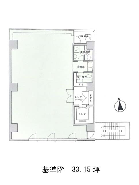
基準階は33.15坪の整形区画。貸室はほぼ無柱に近く、レイアウト効率の高いプランニングが可能です。
コンパクトな規模感ながらトイレはしっかりと男女別(室内に設置済み)。1フロア1テナント仕様のため、プライバシー性も確保されています。
10〜15名規模の執務室+小会議室といった構成が現実的で、スタートアップや少数精鋭の企業様に適したサイズ感といえます。
名称ビリーヴ新富
住所東京都中央区新富1-19-2
竣工1995年3月
規模地上10階
構造SRC造
交通JR京葉線・東京メトロ日比谷線「八丁堀駅」徒歩2分
設備等エレベーター台・OAフロア・個別空調・男女別トイレ・機械警備
ビリーヴ新富の募集要項や最新の賃料相場について詳しく知りたい方は、「ビリーヴ新富|貸事務所東京.WAVE」をご覧ください。
中央区新富アドレス、八丁堀駅徒歩2分の好立地に位置する「ビリーヴ新富」。複数路線が利用可能で、東京駅・銀座・築地方面へのアクセスも良好です。
都心各所への移動が多い企業様にとって、機動力の高いポジションといえるでしょう。
外観はガラスを基調としたシンプルなデザインで、来訪者にも清潔感のある印象を与えます。
基準階は33.15坪。コンパクトながら整形な間取りで、レイアウト効率の高さが魅力です。執務スペースを中心に、小会議室や打合せスペースを設けることで、バランスの良い構成が可能。
男女別トイレや給湯スペースが室内に配置されている点も、日々の使い勝手に配慮された設計です。
スタートアップ企業や分室開設、プロジェクト拠点など、スモールスタートを検討される企業様にとって、立地・サイズ・機能性のバランスが取れた一棟です。
2026.01.08 中央区
「CIRCLES日本橋浜町」は2024年7月竣工の三菱地所ブランドによる新築オフィスビル。
都営新宿線・浜町駅から徒歩2分という好アクセスのポジションにあり、「人形町」「馬喰横山」「東日本橋」といった複数駅も徒歩圏内です。
外観はガラスを基調にしたモダンなデザインで、街並みの中でも存在感がありつつ街に溶け込むスタイリッシュさ。周辺には飲食・カフェ・ショッピングスポットも充実しており、働く毎日を後押しします。
2026.01.08 中央区
2025.12.11 港区
御成門駅出口すぐ、御成門交差点角地に立つ菱進御成門ビル。2015年竣工の外観はガラスウォールと洗練されたマテリアルで構成されており、通りに映える存在感があります。
1階にコンビニを備え、日常的な利便性も確保。都営三田線「御成門駅」が徒歩1分、他にも「大門」「神谷町」「新橋」など複数駅が使えるアクセスの良さで、通勤・来客ともにストレスが少ない立地です。
2025.12.11 港区