スタッフが仲良くミーティングしている 泡 泡

STAFF BLOG

スタッフが仲良くミーティングしている
微笑みながら仕事をする女性 泡

ビジネスを加速させる《銀座PREX East》——ハイグレードな新拠点

銀座PREX Eastのメイン画像

スタイリッシュな黒基調のファサードが目を引く「銀座PREX East」。
銀座エリアの中でも静かな一角に立地しながら、新富町駅徒歩2分、東銀座・銀座一丁目駅も徒歩圏という利便性の高さが魅力です。

この物件の関連画像を見る

OTHER PHOTO
銀座PREX Eastのエントランス エントランス
銀座PREX Eastのエントランス エントランス

この物件の間取り情報を見る

FLOOR MAP

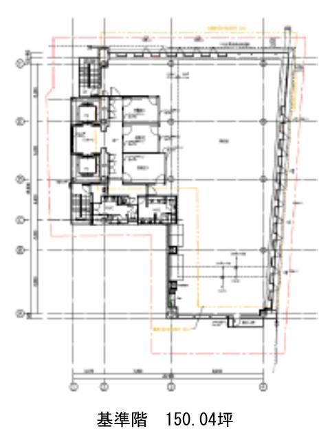
基準階約150坪のワンフロアは、L字型に近い無柱空間。室外に男女別トイレや給湯スペースを設け、執務空間を効率よく活用可能です。開放感のあるコーナーガラス面を生かしたレイアウト設計ができる点もポイント。天井高は2,550mmと高めに設計されており、ゆとりのある空間演出が可能です。快適性とレイアウト自由度を両立した設計です。

建物情報の詳細を確認する

INFORMATION

名称銀座PREX East

住所東京都中央区築地2-1-4

竣工2024年8月

規模地上10階

構造S造

交通東京メトロ有楽町線「新富町駅」徒歩2分

設備等エレベーター2台・OAフロア・個別空調・男女別トイレ・機械警備・駐車場

視線を集める佇まい。「銀座PREX East」の洗練と実用性に迫る!——

 「銀座PREX East」は、ガラスと縦ラインの意匠が美しいハイグレードオフィスビル。
新富町駅徒歩2分、銀座一丁目・東銀座駅も利用できる立地に加え、銀座エリアの洗練と落ち着きが共存するポジションが魅力です。

基準階は約150坪の整形空間。L字型ながら柱の少ないすっきりとした構造で、ゾーニングの自由度は高く、働き方に合わせた柔軟なレイアウトが可能です。
共用部に集約された男女別トイレや給湯スペースも、執務エリアの集中環境を確保するうえで大きなポイント。
また本物件の特長のひとつとして「HalfSetup賃貸方式」があります。執務室・会議室といった基本的な内装が初期から整っており、コスト・時間ともに大幅に軽減。
短納期でのスタートアップや移転を想定する企業にとって、大きなアドバンテージとなります。

さらに注目したいのは、内装のグレード感。上質な床材やデザイン性のある照明、開放感のある天井高など、ハイグレードビルにふさわしい品の良さが漂います。
各所に設けられた可動式ブースや会議室は、柔軟な働き方やゾーニングにもしっかり対応。個別空調、LED照明、OAフロアも完備され、機能面も抜かりありません。

そして館内の“安心感”を支えるトリプルセキュリティ。
エントランスからオフィスフロアへ至るまで、オートロックや非接触型ICカード認証、そしてセキュリティゲートまで3段階の入退館管理を採用しています。
Suica・PASMOにも対応しており、利便性と堅牢性を両立しています。さらに24時間体制の警備保障や遠隔監視にも対応し、不審者の侵入や災害時にも安心。重要情報を扱う企業にも適した仕様です。

エントランスにはアロマ演出が施されており、ビジネス空間でありながら来訪者にもやさしい第一印象を提供。
共用部にはBGM環境やWi-Fiも整備され、1階のラウンジや屋上庭園では、リフレッシュや軽い打合せにも活用できる“ゆとり”のある空間設計がなされています。

ハード面の機能性と、心地よさを演出するソフト面のバランス。その両方を高水準で備えた「銀座PREX East」は、単なるオフィスの枠を超え、企業ブランドを体現する拠点として選ばれています。

他のおすすめ物件を見る

OTHER

「CIRCLES日本橋浜町」は2024年7月竣工の三菱地所ブランドによる新築オフィスビル。
都営新宿線・浜町駅から徒歩2分という好アクセスのポジションにあり、「人形町」「馬喰横山」「東日本橋」といった複数駅も徒歩圏内です。
外観はガラスを基調にしたモダンなデザインで、街並みの中でも存在感がありつつ街に溶け込むスタイリッシュさ。周辺には飲食・カフェ・ショッピングスポットも充実しており、働く毎日を後押しします。

2026.01.08 中央区

御成門駅出口すぐ、御成門交差点角地に立つ菱進御成門ビル。2015年竣工の外観はガラスウォールと洗練されたマテリアルで構成されており、通りに映える存在感があります。
1階にコンビニを備え、日常的な利便性も確保。都営三田線「御成門駅」が徒歩1分、他にも「大門」「神谷町」「新橋」など複数駅が使えるアクセスの良さで、通勤・来客ともにストレスが少ない立地です。

2025.12.11 港区