基準階100坪超×整形レイアウト|《渋谷TSKビル》
「渋谷TSKビル」は、渋谷駅徒歩7分、南平台町エリアの玉川通りに近いオフィスビルです。駅前の喧騒からやや離れた落ち着いた環境であり、渋谷駅・神泉駅へのアクセス可能な立地です。
ガラス面を多く用いた外観は視認性があり、角地ならではの開放感もあります。
「渋谷TSKビル」は、渋谷駅徒歩7分、南平台町エリアの玉川通りに近いオフィスビルです。駅前の喧騒からやや離れた落ち着いた環境であり、渋谷駅・神泉駅へのアクセス可能な立地です。
ガラス面を多く用いた外観は視認性があり、角地ならではの開放感もあります。
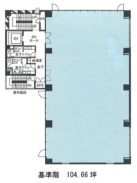
基準階は104.66坪。執務スペースは大きく整形で、レイアウトの自由度が高い区画です。水回り(男女別トイレ・給湯室)は室外共用部に集約され、執務エリアとの動線分離がしやすい設計。
EVホールも独立しており、来客動線を整理しやすい点が特徴です。会議室を複数設置しながらも、オープンスペースを十分に確保できる面積帯で、40〜60名規模のオフィス利用も想定できます。
名称渋谷TSKビル
住所東京都渋谷区南平台町3-8
竣工2008年6月
規模地上4階/地下1階
構造RC造
交通京王井の頭線「渋谷駅」徒歩7分
設備等エレベーター1台・OAフロア・個別空調・男女別トイレ・機械警備・駐車場
渋谷TSKビルの募集要項や最新の賃料相場について詳しく知りたい方は、「渋谷TSKビル|貸事務所東京.WAVE」をご覧ください。
「渋谷TSKビル」は、渋谷駅徒歩7分、神泉駅からも徒歩圏内の南平台町の落ち着いたエリアに位置しています。玉川通りからも近く、都心の利便性が就業環境を両立させたポジションといえます。
外観はガラス面を活かしたデザインで、角地ならではの開放感が感じられ、エントランスホールは明るく整えられており、来訪者を迎える空間としても落ち着いた印象です。
基準階は104.66坪のワンフロア構成で、整形な執務空間はレイアウト効率が高く、部門分けや会議室などの複数設置にも対応しやすい広さです。
水回り(男女別トイレ・給湯室)は室外共用部に配置。EVホールからの来客動線を明確です。
一定規模の本社や成長企業の拠点としても落ち着きのある理想的な環境で、渋谷アドレスと機能性の両立を求める企業に適した物件といえるでしょう。
2026.01.08 中央区
「CIRCLES日本橋浜町」は2024年7月竣工の三菱地所ブランドによる新築オフィスビル。
都営新宿線・浜町駅から徒歩2分という好アクセスのポジションにあり、「人形町」「馬喰横山」「東日本橋」といった複数駅も徒歩圏内です。
外観はガラスを基調にしたモダンなデザインで、街並みの中でも存在感がありつつ街に溶け込むスタイリッシュさ。周辺には飲食・カフェ・ショッピングスポットも充実しており、働く毎日を後押しします。
2026.01.08 中央区
2025.12.11 港区
御成門駅出口すぐ、御成門交差点角地に立つ菱進御成門ビル。2015年竣工の外観はガラスウォールと洗練されたマテリアルで構成されており、通りに映える存在感があります。
1階にコンビニを備え、日常的な利便性も確保。都営三田線「御成門駅」が徒歩1分、他にも「大門」「神谷町」「新橋」など複数駅が使えるアクセスの良さで、通勤・来客ともにストレスが少ない立地です。
2025.12.11 港区