スタッフが仲良くミーティングしている 泡 泡

STAFF BLOG

スタッフが仲良くミーティングしている
微笑みながら仕事をする女性 泡

新橋駅すぐ!堂々たる風格を纏う《新橋東急ビル》の魅力

新橋東急ビルのメイン画像

新橋駅の地下鉄出入口至近というアクセス性に加え、大通りに面した角地立地で視認性も良好。
石造りのファサードはひと目で上質さを感じさせ、都会的な植栽がほどよく柔らかさを添えています。周辺には飲食店が充実しつつも、ビル自体は三方向が道路に囲まれており、繁華街の喧騒から一歩引いた落ち着きも確保。

この物件の関連画像を見る

OTHER PHOTO
新橋東急ビルのエントランス エントランス
新橋東急ビルのエントランス エントランス
新橋東急ビルのホール ホール
新橋東急ビルのエレベーター エレベーター

この物件の間取り情報を見る

FLOOR MAP

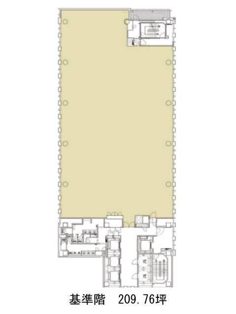
基準階は200坪強(フロアや時期により若干変動あり)で、整形かつ無柱構造。大型レイアウトもフレキシブルに対応でき、執務空間の自由度が高い点が特徴です。
水回りはすべて共有部に集約されており、室内に干渉せず好印象。来客動線と執務動線を分けやすく、企業イメージを重視するテナントにもフィットします。

建物情報の詳細を確認する

INFORMATION

名称新橋東急ビル

住所東京都港区新橋4-21-3

竣工2008年4月

規模地上16階/地下1階

構造S造(一部SRC造)

交通各線「新橋駅」徒歩2分

設備等エレベーター6台・OAフロア・個別空調・男女別トイレ・機械警備・駐車場

アクセス・機能・品格を備えた大型オフィス「新橋東急ビル」

新橋駅の地下鉄出入口からすぐというアクセス力が強みの「新橋東急ビル」。角地という立地も手伝い、ビジネスの拠点としての高いポテンシャルを感じさせます。
新橋の賑わいを感じる場所にありながら、ビル自体は三方向を道路に囲まれており、隣接建物がないことで開放感と静けさを兼ね備えた稀有な環境です。

基準階は200坪強(※階や時期によって若干の変動あり)と広く、整形かつ無柱構造のため、レイアウトの自由度が高い点が大きな魅力。増員や組織再編といった将来的な変化にも柔軟に対応可能です。
さらに、水回りは全て共有部に集約されており、執務空間を最大限に活用できる点も高ポイント。集中と生産性の高い執務環境を実現します。

エントランスには天然石がふんだんに使用され、天井高のあるホールが訪れる人に品格ある印象を与えます。また、随所に配された植栽が、都市型ビルにやわらかさと潤いをもたらし、洗練された空間づくりに一役買っています。

利便性、機能性、そして外観の美しさ。どれを取っても高水準な「新橋東急ビル」は、企業の信頼感を高めたい成長企業や、来客の多い業種にも自信を持っておすすめできる一棟です。

他のおすすめ物件を見る

OTHER

「CIRCLES日本橋浜町」は2024年7月竣工の三菱地所ブランドによる新築オフィスビル。
都営新宿線・浜町駅から徒歩2分という好アクセスのポジションにあり、「人形町」「馬喰横山」「東日本橋」といった複数駅も徒歩圏内です。
外観はガラスを基調にしたモダンなデザインで、街並みの中でも存在感がありつつ街に溶け込むスタイリッシュさ。周辺には飲食・カフェ・ショッピングスポットも充実しており、働く毎日を後押しします。

2026.01.08 中央区

御成門駅出口すぐ、御成門交差点角地に立つ菱進御成門ビル。2015年竣工の外観はガラスウォールと洗練されたマテリアルで構成されており、通りに映える存在感があります。
1階にコンビニを備え、日常的な利便性も確保。都営三田線「御成門駅」が徒歩1分、他にも「大門」「神谷町」「新橋」など複数駅が使えるアクセスの良さで、通勤・来客ともにストレスが少ない立地です。

2025.12.11 港区