高輪偕成ビルの貸事務所・賃貸オフィス情報
高輪偕成ビルの貸事務所・賃貸オフィス情報
高輪偕成ビル
- 物件番号
- 124-00175
- 所在地
- 東京都港区高輪3-4-1
- 竣工
- 1993年11月
- 規模
- 地上9階
- エレベーター
- 個別空調
- 駐車場
- 新耐震基準
高輪偕成ビルの空室フロアリスト
| 階数 | 面積 | 賃料+共益費 | 保証金 | 入居時期 | 更新料 | 償却費 | 礼金 | 検討 | 平面図 | 詳細 |
|---|---|---|---|---|---|---|---|---|---|---|
| 3 | 66.07坪 |
1,162,829円17,600円/坪
|
578万円
|
即 | なし | なし | なし |
高輪偕成ビルの物件情報
高輪偕成ビル(港区高輪)は高輪台駅徒歩5分、白金台駅徒歩11分、白金高輪駅徒歩11分の賃貸オフィスです。
高輪偕成ビルのアクセス
高輪偕成ビルの募集終了区画
| 階数 | 面積 | 賃料+共益費 | 保証金 | 入居時期 | 更新料 | 償却費 | 礼金 | 平面図 | 詳細 |
|---|---|---|---|---|---|---|---|---|---|
| 1 | 42.67坪 | − | − | 募集終了 | − | − | − | ||
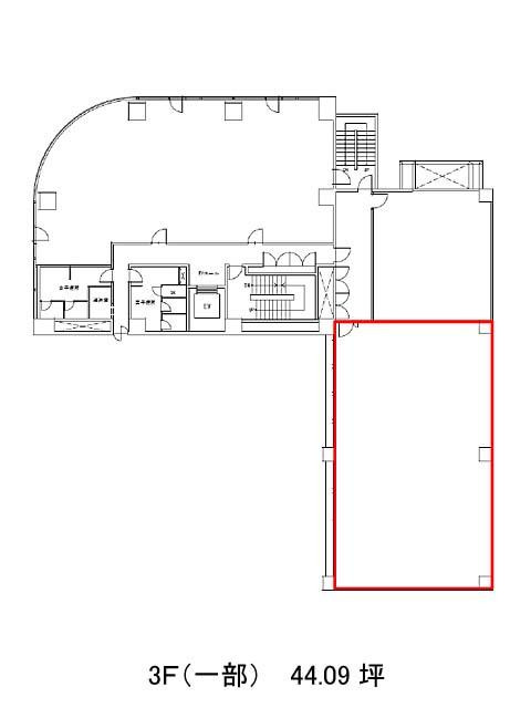
| 3 | 44.09坪 | − | − | 募集終了 | − | − | − | ||
| 3 | 16.41坪 | − | − | 募集終了 | − | − | − | ||
| 3 | 45.51坪 | − | − | 募集終了 | − | − | − | ||
| 4 | 100.95坪 | − | − | 募集終了 | − | − | − | ||
| 5 | 60.99坪 | − | − | 募集終了 | − | − | − | ||
| 6 | 60.99坪 | − | − | 募集終了 | − | − | − | ||
| 8 | 60.99坪 | − | − | 募集終了 | − | − | − | ||
| 9 | 56.56坪 | − | − | 募集終了 | − | − | − |


