三田スクエアビルの貸事務所・賃貸オフィス情報
三田スクエアビルの貸事務所・賃貸オフィス情報
三田スクエアビル
- エレベーター
- 個別空調
- 旧耐震基準
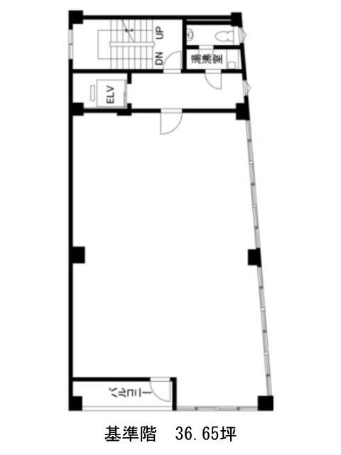
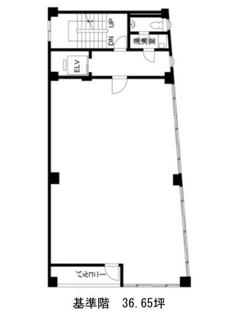
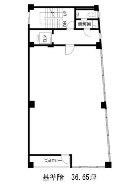
三田スクエアビルの空室フロアリスト
| 階数 | 面積 | 賃料+共益費 | 保証金 | 入居時期 | 更新料 | 償却費 | 礼金 | 検討 | 平面図 | 詳細 |
|---|---|---|---|---|---|---|---|---|---|---|
| 4 | 36.65坪 |
620,400円16,929円/坪
|
312万円
|
2026年3月中旬 | 新1ケ月 | なし | なし | |||
| 6 | 36.65坪 |
620,400円16,929円/坪
|
312万円
|
即 | 新1ケ月 | なし | なし |
三田スクエアビルの物件情報
三田スクエアビル(港区芝)は三田駅徒歩3分、田町駅徒歩5分、赤羽橋駅徒歩12分の賃貸オフィスです。
三田スクエアビルのアクセス
三田スクエアビルの募集終了区画
| 階数 | 面積 | 賃料+共益費 | 保証金 | 入居時期 | 更新料 | 償却費 | 礼金 | 平面図 | 詳細 |
|---|---|---|---|---|---|---|---|---|---|
| 3 | 36.65坪 | − | − | 募集終了 | − | − | − | ||
| 5 | 36.65坪 | − | − | 募集終了 | − | − | − |


