芝大門116ビルの貸事務所・賃貸オフィス情報
芝大門116ビルの貸事務所・賃貸オフィス情報
芝大門116ビル
- 物件番号
- 129-00110
- 所在地
- 東京都港区芝大門1-16-3
- 竣工
- 1994年4月
- 規模
- 地上9階/地下1階
- エレベーター
- 個別空調
- 駐車場
- 新耐震基準
芝大門116ビルの空室フロアリスト
| 階数 | 面積 | 賃料+共益費 | 保証金 | 入居時期 | 更新料 | 償却費 | 礼金 | 検討 | 平面図 | 詳細 |
|---|---|---|---|---|---|---|---|---|---|---|
| 5 | 96.31坪 |
応相談応相談
|
応相談
|
2026年7月下旬 | なし | なし | なし |
芝大門116ビルの物件情報
芝大門116ビル(港区芝大門)は大門駅徒歩2分、浜松町駅徒歩5分、モノレール浜松町駅徒歩6分の賃貸オフィスです。
芝大門116ビルのアクセス
芝大門116ビルの募集終了区画
| 階数 | 面積 | 賃料+共益費 | 保証金 | 入居時期 | 更新料 | 償却費 | 礼金 | 平面図 | 詳細 |
|---|---|---|---|---|---|---|---|---|---|
| B1-1 | 82.16坪 | − | − | 募集終了 | − | − | − | ||
| 1-2 | 115.05坪 | − | − | 募集終了 | − | − | − | ||
| 1-2 | 27.43坪 | − | − | 募集終了 | − | − | − | ||
| 1-2 | 30.43坪 | − | − | 募集終了 | − | − | − | ||
| 2 | 84.62坪 | − | − | 募集終了 | − | − | − | ||
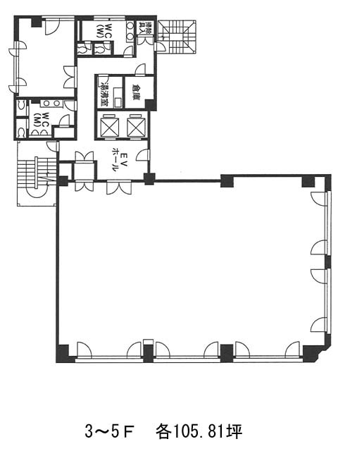
| 3 | 105.81坪 | − | − | 募集終了 | − | − | − | ||
| 3 | 94.62坪 | − | − | 募集終了 | − | − | − | ||
| 4 | 96.31坪 | − | − | 募集終了 | − | − | − | ||
| 6 | 105.81坪 | − | − | 募集終了 | − | − | − | ||
| 7 | 117.13坪 | − | − | 募集終了 | − | − | − | ||
| 8 | 117.13坪 | − | − | 募集終了 | − | − | − |


