赤坂セントラルビルの貸事務所・賃貸オフィス情報
赤坂セントラルビルの貸事務所・賃貸オフィス情報
赤坂セントラルビル
- 物件番号
- 133-01043
- 所在地
- 東京都港区赤坂3-13-3
- 竣工
- 1989年12月
- 規模
- 地上7階/地下1階
- エレベーター
- 新耐震基準
赤坂セントラルビルの空室フロアリスト
| 階数 | 面積 | 賃料+共益費 | 保証金 | 入居時期 | 更新料 | 償却費 | 礼金 | 検討 | 平面図 | 詳細 |
|---|---|---|---|---|---|---|---|---|---|---|
| 2 | 19.36坪 |
374,000円19,318円/坪
|
204万円
|
即 | 新1ケ月 | 2ケ月 | なし |
赤坂セントラルビルの物件情報
赤坂セントラルビル(港区赤坂)は赤坂駅徒歩2分、赤坂見附駅徒歩5分、溜池山王駅徒歩6分の賃貸オフィスです。
赤坂セントラルビルのアクセス
赤坂セントラルビルの条件に近い物件
赤坂セントラルビルの募集終了区画
| 階数 | 面積 | 賃料+共益費 | 保証金 | 入居時期 | 更新料 | 償却費 | 礼金 | 平面図 | 詳細 |
|---|---|---|---|---|---|---|---|---|---|
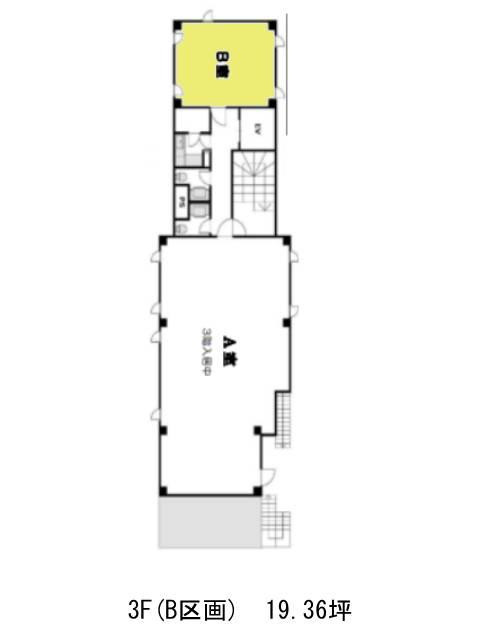
| 3 | 19.36坪 | − | − | 募集終了 | − | − | − | ||
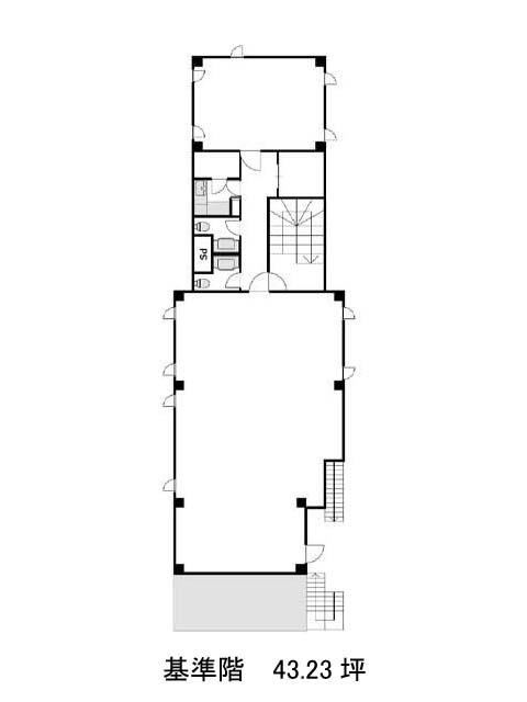
| 4 | 43.23坪 | − | − | 募集終了 | − | − | − | ||
| 5 | 48.86坪 | − | − | 募集終了 | − | − | − | ||
| 6 | 44.75坪 | − | − | 募集終了 | − | − | − | ||
| 7 | 27.14坪 | − | − | 募集終了 | − | − | − |


