中村ビルの貸事務所・賃貸オフィス情報
中村ビルの貸事務所・賃貸オフィス情報
中村ビル
- 物件番号
- 133-00191
- 所在地
- 東京都港区赤坂2-12-9
- 竣工
- 1974年7月
- 規模
- 地上5階
- 個別空調
- 旧耐震基準
中村ビルの空室フロアリスト
| 階数 | 面積 | 賃料+共益費 | 保証金 | 入居時期 | 更新料 | 償却費 | 礼金 | 検討 | 平面図 | 詳細 |
|---|---|---|---|---|---|---|---|---|---|---|
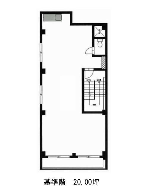
| 3 | 20.00坪 |
308,000円15,400円/坪
|
168万円
|
即 | 新1ケ月 | なし | 1ケ月 |
中村ビルの物件情報
中村ビル(港区赤坂)は溜池山王駅徒歩2分、国会議事堂前駅徒歩6分、赤坂駅徒歩6分の賃貸オフィスです。
中村ビルのアクセス
中村ビルの条件に近い物件
中村ビルの募集終了区画
| 階数 | 面積 | 賃料+共益費 | 保証金 | 入居時期 | 更新料 | 償却費 | 礼金 | 平面図 | 詳細 |
|---|---|---|---|---|---|---|---|---|---|
| 2 | 20.00坪 | − | − | 募集終了 | − | − | − | ||
| 4 | 20.00坪 | − | − | 募集終了 | − | − | − |


