0120-16-2331

【受付時間】平日 AM9:00〜PM7:00

メールでお問合せ

チュリス赤坂の貸事務所・賃貸オフィス情報

チュリス赤坂の貸事務所・賃貸オフィス情報

チュリス赤坂

物件番号
133​-​00623
所在地
東京都港区赤坂2-17-12
最寄駅
赤坂駅 7分
竣工
1983年1月
規模
地上14階/地下1階
  • エレベーター
  • 個別空調
  • 駐車場
  • 新耐震基準

チュリス赤坂の空室フロアリスト

階数 面積 賃料+共益費 保証金 入居時期 更新料 償却費 礼金 検討 平面図 詳細
10 34.61坪
応相談応相談
195万円
相談 新1ケ月 なし 2ケ月

チュリス赤坂の物件情報

チュリス赤坂(港区赤坂)は溜池山王駅徒歩3分、赤坂駅徒歩7分、国会議事堂前駅徒歩7分の賃貸オフィスです。

チュリス赤坂のアクセス

チュリス赤坂の条件に近い物件

アークヒルズエグゼクティブタワー

東京都港区赤坂1-14-5

アークヒルズエグゼクティブタワー

松田ビル

東京都港区赤坂2-9-2

松田ビル

シャトー佐和

東京都港区赤坂4-6-3

シャトー佐和

赤坂TKビル

東京都港区赤坂2-16-6

赤坂TKビル
  • 面積 16.17坪
  • 空きフロア 1
  • 最寄り駅
    赤坂駅 徒歩4分

溜池山王葵ビル

東京都港区赤坂2-8-11

溜池山王葵ビル

関ビル

東京都港区赤坂2-19-4

関ビル

ゴールド赤坂ビル

東京都港区赤坂3-12-11

ゴールド赤坂ビル
  • 面積 17.58坪
  • 空きフロア 1
  • 最寄り駅
    赤坂駅 徒歩3分

富岳ビル

東京都港区赤坂6-15-12

富岳ビル
  • 面積 17.60坪
  • 空きフロア 3
  • 最寄り駅
    赤坂駅 徒歩6分

貸事務所・賃貸オフィスを最寄駅から探す

貸事務所・賃貸オフィスを最寄駅の沿線から探す

チュリス赤坂の募集終了区画

階数 面積 賃料+共益費 保証金 入居時期 更新料 償却費 礼金 平面図 詳細
3 37.67坪 募集終了
7 37.78坪 募集終了
8 37.64坪 募集終了
8 37.68坪 募集終了
9 37.68坪 募集終了
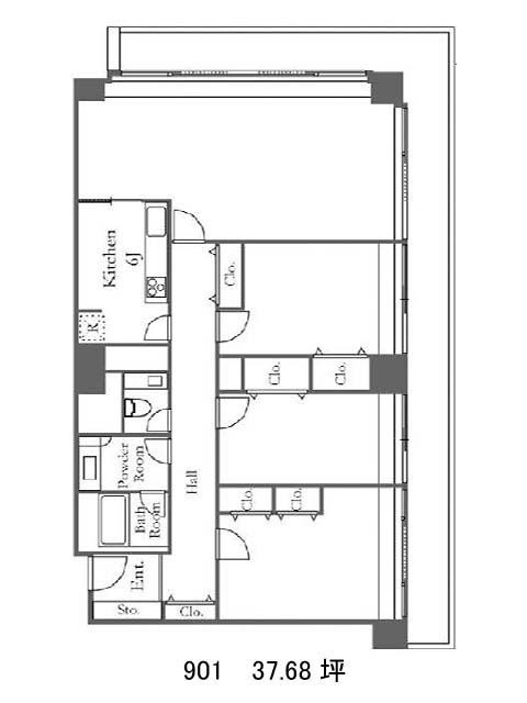
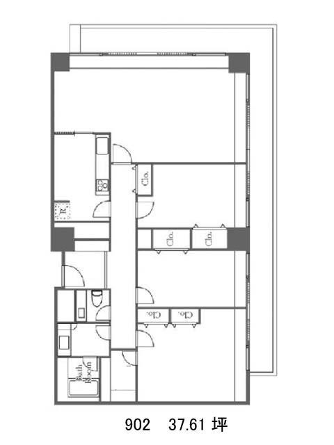
9 37.61坪 募集終了
10 37.64坪 募集終了
14 37.78坪 募集終了
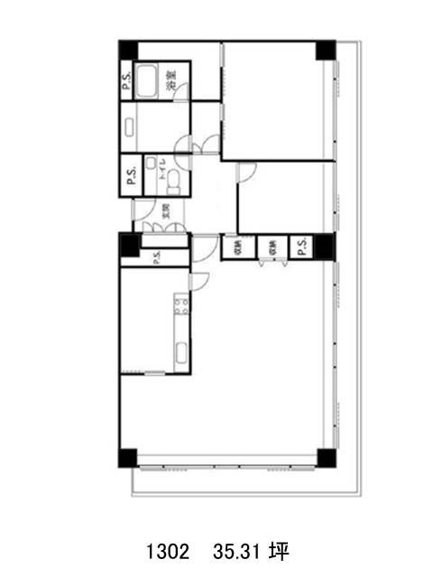
14 35.31坪 募集終了
お問合せ このビルについて問い合わせる