陶香堂ビルの貸事務所・賃貸オフィス情報
陶香堂ビルの貸事務所・賃貸オフィス情報
陶香堂ビル
- 物件番号
- 133-00716
- 所在地
- 東京都港区赤坂3-21-12
- 竣工
- 1990年5月
- 規模
- 地上7階/地下1階
- エレベーター
- 個別空調
- 新耐震基準
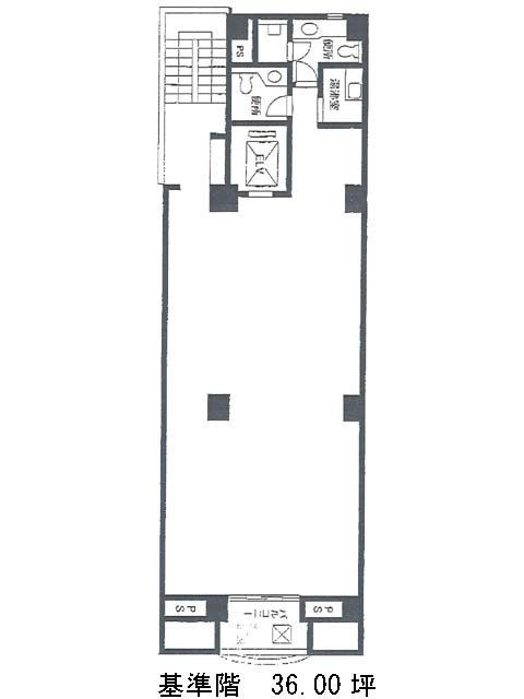
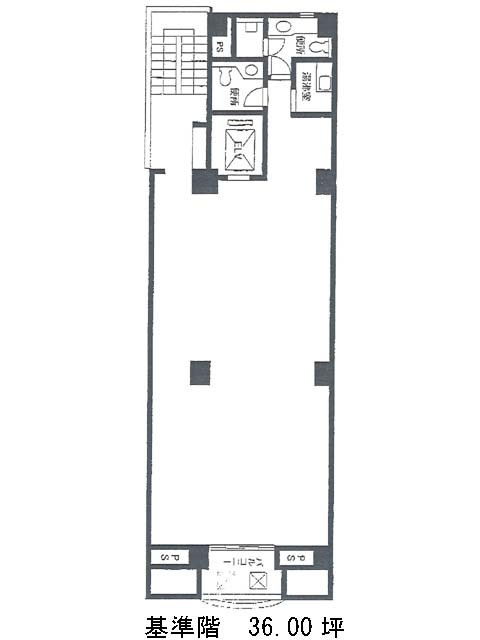
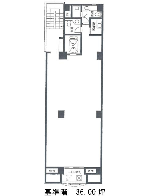
陶香堂ビルの空室フロアリスト
| 階数 | 面積 | 賃料+共益費 | 保証金 | 入居時期 | 更新料 | 償却費 | 礼金 | 検討 | 平面図 | 詳細 |
|---|---|---|---|---|---|---|---|---|---|---|
| 2 | 36.00坪 |
792,000円22,000円/坪
|
432万円
|
即 | 新1ケ月 | 1ケ月 | 1ケ月 | |||
| 5 | 36.00坪 |
792,000円22,000円/坪
|
432万円
|
即 | 新1ケ月 | 1ケ月 | 1ケ月 |
陶香堂ビルの物件情報
陶香堂ビル(港区赤坂)は赤坂見附駅徒歩3分、永田町駅徒歩5分、赤坂駅徒歩6分の賃貸オフィスです。
陶香堂ビルのアクセス
陶香堂ビルの募集終了区画
| 階数 | 面積 | 賃料+共益費 | 保証金 | 入居時期 | 更新料 | 償却費 | 礼金 | 平面図 | 詳細 |
|---|---|---|---|---|---|---|---|---|---|
| 3 | 36.00坪 | − | − | 募集終了 | − | − | − | ||
| 4 | 36.00坪 | − | − | 募集終了 | − | − | − | ||
| 6 | 36.00坪 | − | − | 募集終了 | − | − | − | ||
| 7 | 25.00坪 | − | − | 募集終了 | − | − | − |


