SIL新宿の貸事務所・賃貸オフィス情報
SIL新宿の貸事務所・賃貸オフィス情報
SIL新宿
- エレベーター
- 個別空調
- 駐車場
- 新耐震基準
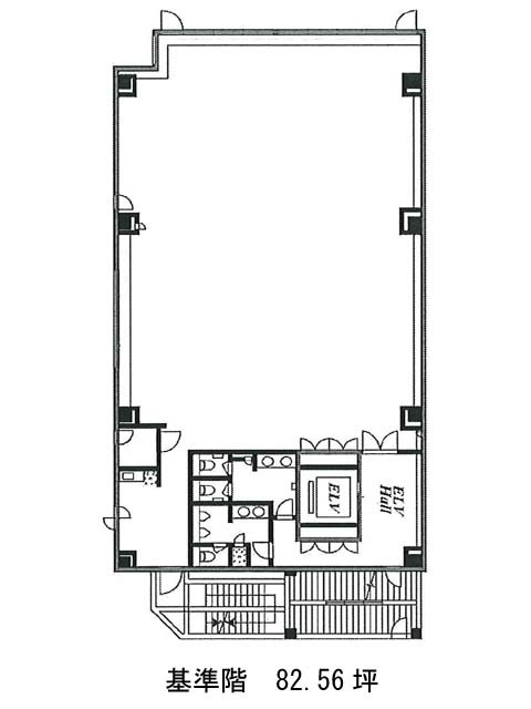
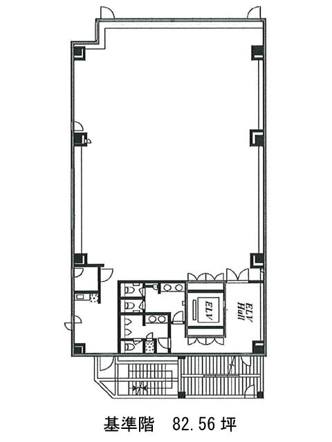
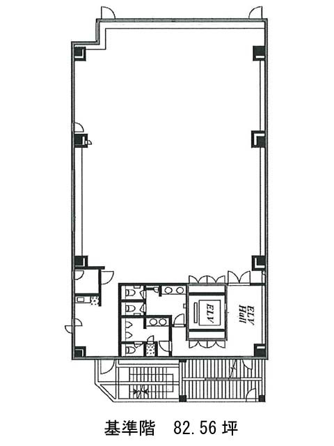
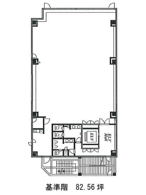
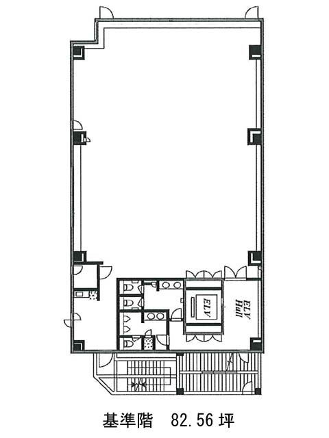
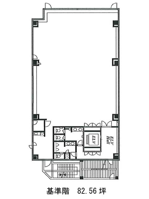
SIL新宿の空室フロアリスト
| 階数 | 面積 | 賃料+共益費 | 保証金 | 入居時期 | 更新料 | 償却費 | 礼金 | 検討 | 平面図 | 詳細 |
|---|---|---|---|---|---|---|---|---|---|---|
| 5 | 82.56坪 |
2,906,112円35,200円/坪
|
2873万円
|
2026年7月上旬 | 新1ケ月 | 2ケ月 | なし |
SIL新宿の物件情報
SIL新宿(新宿区歌舞伎町)は西武新宿駅徒歩2分、大久保駅徒歩7分、新宿西口駅徒歩8分の賃貸オフィスです。
SIL新宿のアクセス
SIL新宿の条件に近い物件
SIL新宿の募集終了区画
| 階数 | 面積 | 賃料+共益費 | 保証金 | 入居時期 | 更新料 | 償却費 | 礼金 | 平面図 | 詳細 |
|---|---|---|---|---|---|---|---|---|---|
| 2 | 82.56坪 | − | − | 募集終了 | − | − | − | ||
| 3 | 82.56坪 | − | − | 募集終了 | − | − | − | ||
| 4 | 82.56坪 | − | − | 募集終了 | − | − | − | ||
| 6 | 82.56坪 | − | − | 募集終了 | − | − | − | ||
| 7 | 82.57坪 | − | − | 募集終了 | − | − | − | ||
| 8 | 82.57坪 | − | − | 募集終了 | − | − | − |


