現在、空室がございません。
KOA新宿の貸事務所・賃貸オフィス情報
KOA新宿の貸事務所・賃貸オフィス情報
KOA新宿
- 物件番号
- 230-00244
- 所在地
- 東京都新宿区新宿1-14-10
- 竣工
- 1987年5月
- 規模
- 地上5階/地下1階
- エレベーター
- 個別空調
- 新耐震基準
KOA新宿の空室フロアリスト
現在、空室がございません。
KOA新宿の物件情報
KOA新宿(新宿区新宿)は新宿御苑前駅徒歩3分、新宿三丁目駅徒歩6分、四谷三丁目駅徒歩12分の賃貸オフィスです。
KOA新宿のアクセス
KOA新宿の募集終了区画
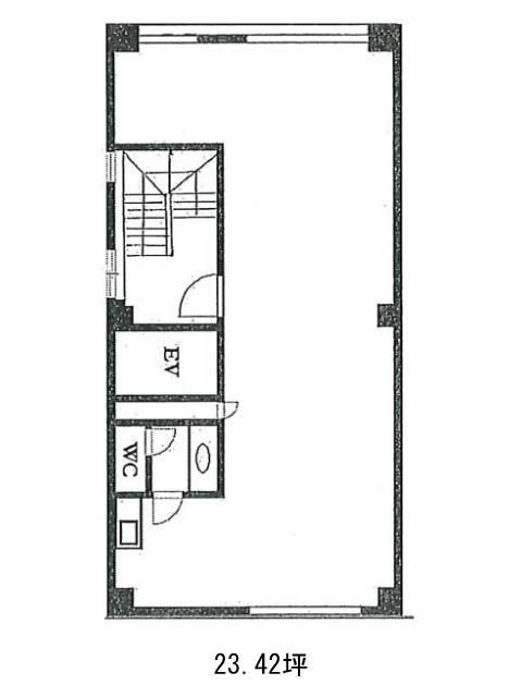
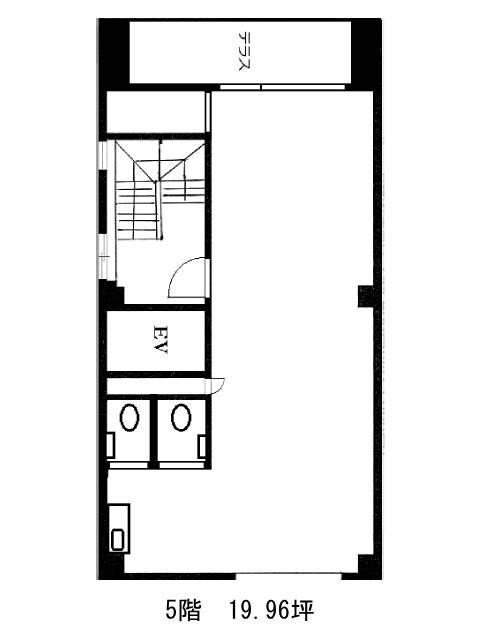
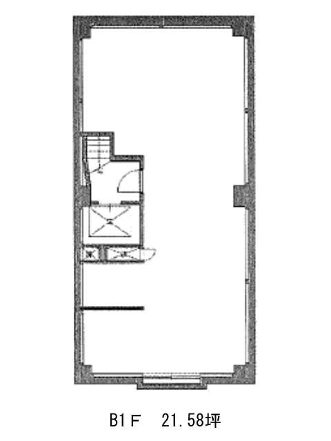
| 階数 | 面積 | 賃料+共益費 | 保証金 | 入居時期 | 更新料 | 償却費 | 礼金 | 平面図 | 詳細 |
|---|---|---|---|---|---|---|---|---|---|
| 地下1 | 21.58坪 | − | − | 募集終了 | − | − | − | ||
| 2 | 23.42坪 | − | − | 募集終了 | − | − | − | ||
| 3 | 23.42坪 | − | − | 募集終了 | − | − | − | ||
| 4 | 23.42坪 | − | − | 募集終了 | − | − | − | ||
| 5 | 19.96坪 | − | − | 募集終了 | − | − | − |


