カメリアビルの貸事務所・賃貸オフィス情報
カメリアビルの貸事務所・賃貸オフィス情報
カメリアビル
- エレベーター
- 個別空調
- 新耐震基準
カメリアビルの空室フロアリスト
| 階数 | 面積 | 賃料+共益費 | 保証金 | 入居時期 | 更新料 | 償却費 | 礼金 | 検討 | 平面図 | 詳細 |
|---|---|---|---|---|---|---|---|---|---|---|
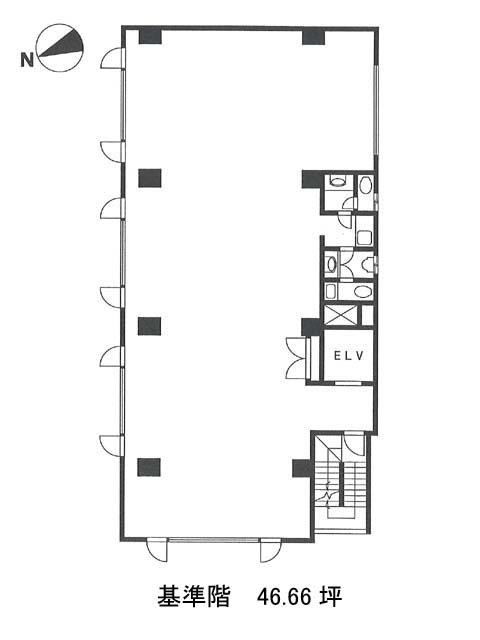
| 3 | 46.65坪 |
769,725円16,500円/坪
|
363万円
|
即 | 新1ケ月 | なし | 1ケ月 |
カメリアビルの物件情報
カメリアビル(新宿区西新宿)は西新宿駅徒歩3分、都庁前駅徒歩7分、新宿駅徒歩8分の賃貸オフィスです。
カメリアビルのアクセス
カメリアビルの条件に近い物件
カメリアビルの募集終了区画
| 階数 | 面積 | 賃料+共益費 | 保証金 | 入居時期 | 更新料 | 償却費 | 礼金 | 平面図 | 詳細 |
|---|---|---|---|---|---|---|---|---|---|
| 1 | 32.38坪 | − | − | 募集終了 | − | − | − | ||
| 2 | 46.66坪 | − | − | 募集終了 | − | − | − | ||
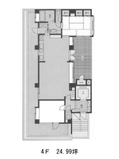
| 4 | 24.99坪 | − | − | 募集終了 | − | − | − |


