花岡ビルの貸事務所・賃貸オフィス情報
花岡ビルの貸事務所・賃貸オフィス情報
花岡ビル
- 物件番号
- 383-00050
- 所在地
- 東京都千代田区岩本町3-9-1
- 竣工
- 1974年8月
- 規模
- 地上7階/地下1階
- エレベーター
- 個別空調
- 駐車場
- 旧耐震基準
花岡ビルの空室フロアリスト
| 階数 | 面積 | 賃料+共益費 | 保証金 | 入居時期 | 更新料 | 償却費 | 礼金 | 検討 | 平面図 | 詳細 |
|---|---|---|---|---|---|---|---|---|---|---|
| 4 | 21.29坪 |
299,763円14,080円/坪
|
163万円
|
即 | 新1ケ月 | なし | なし |
花岡ビルの物件情報
花岡ビル(千代田区岩本町)は岩本町駅徒歩3分、秋葉原駅徒歩4分、馬喰町駅徒歩9分の賃貸オフィスです。
花岡ビルのアクセス
花岡ビルの募集終了区画
| 階数 | 面積 | 賃料+共益費 | 保証金 | 入居時期 | 更新料 | 償却費 | 礼金 | 平面図 | 詳細 |
|---|---|---|---|---|---|---|---|---|---|
| 地下1 | 32.00坪 | − | − | 募集終了 | − | − | − | ||
| 4 | 20.28坪 | − | − | 募集終了 | − | − | − | ||
| 5 | 41.30坪 | − | − | 募集終了 | − | − | − | ||
| 6 | 39.00坪 | − | − | 募集終了 | − | − | − | ||
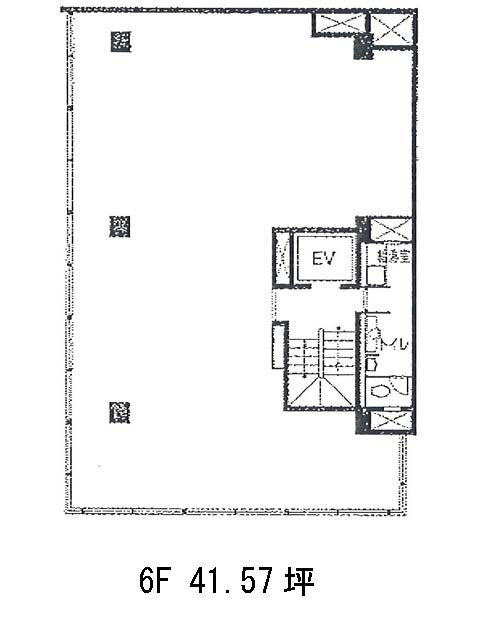
| 6 | 41.57坪 | − | − | 募集終了 | − | − | − | ||
| 7 | 33.20坪 | − | − | 募集終了 | − | − | − |


