日宝神田ノースの貸事務所・賃貸オフィス情報
日宝神田ノースの貸事務所・賃貸オフィス情報
日宝神田ノース
- 物件番号
- 403-00308
- 所在地
- 東京都千代田区神田須田町1-34-10
- 竣工
- 1988年6月
- 規模
- 地上6階
- エレベーター
- 新耐震基準
日宝神田ノースの空室フロアリスト
| 階数 | 面積 | 賃料+共益費 | 保証金 | 入居時期 | 更新料 | 償却費 | 礼金 | 検討 | 平面図 | 詳細 |
|---|---|---|---|---|---|---|---|---|---|---|
| 2 | 15.26坪 |
307,183円20,130円/坪
|
114万円
|
即 | 新0.5ケ月 | 1ケ月 | なし |
日宝神田ノースの物件情報
日宝神田ノース(千代田区神田須田町)は神田駅徒歩2分、小川町駅徒歩4分、淡路町駅徒歩4分の賃貸オフィスです。
日宝神田ノースのアクセス
日宝神田ノースの募集終了区画
| 階数 | 面積 | 賃料+共益費 | 保証金 | 入居時期 | 更新料 | 償却費 | 礼金 | 平面図 | 詳細 |
|---|---|---|---|---|---|---|---|---|---|
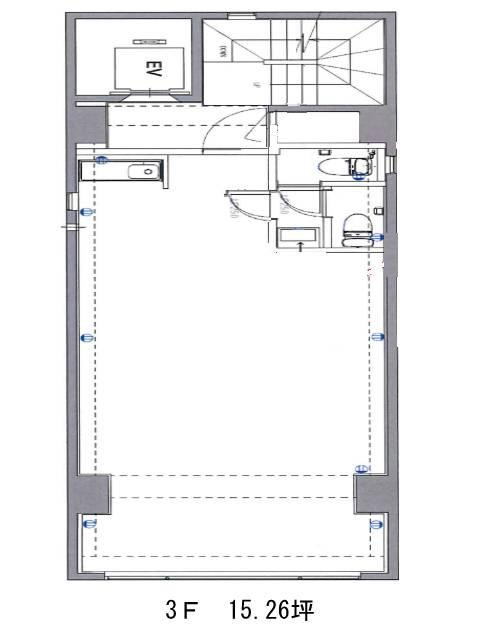
| 3 | 15.26坪 | − | − | 募集終了 | − | − | − |


