現在、空室がございません。
江原ビルの貸事務所・賃貸オフィス情報
江原ビルの貸事務所・賃貸オフィス情報
江原ビル
- 物件番号
- 420-00065
- 所在地
- 東京都千代田区鍛冶町1-5-7
- 竣工
- 1976年3月
- 規模
- 地上9階/地下1階
- エレベーター
- 個別空調
- 駐車場
- 耐震補強済み
江原ビルの空室フロアリスト
現在、空室がございません。
江原ビルの物件情報
江原ビル(千代田区鍛冶町)は新日本橋駅徒歩3分、神田駅徒歩3分、三越前駅徒歩5分の賃貸オフィスです。
江原ビルのアクセス
江原ビルの募集終了区画
| 階数 | 面積 | 賃料+共益費 | 保証金 | 入居時期 | 更新料 | 償却費 | 礼金 | 平面図 | 詳細 |
|---|---|---|---|---|---|---|---|---|---|
| 2 | 145.54坪 | − | − | 募集終了 | − | − | − | ||
| 3 | 137.47坪 | − | − | 募集終了 | − | − | − | ||
| 4 | 137.07坪 | − | − | 募集終了 | − | − | − | ||
| 4 | 137.75坪 | − | − | 募集終了 | − | − | − | ||
| 5 | 137.02坪 | − | − | 募集終了 | − | − | − | ||
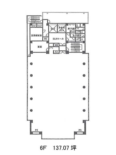
| 6 | 137.07坪 | − | − | 募集終了 | − | − | − | ||
| 7 | 137.07坪 | − | − | 募集終了 | − | − | − | ||
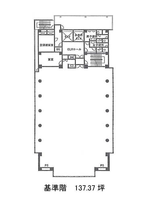
| 8 | 137.37坪 | − | − | 募集終了 | − | − | − | ||
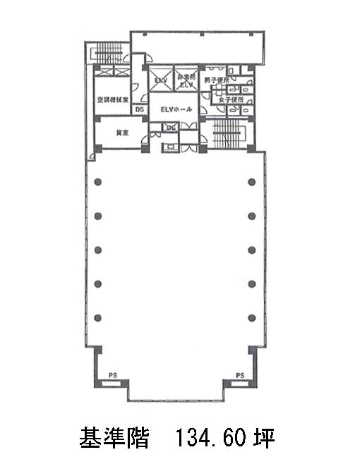
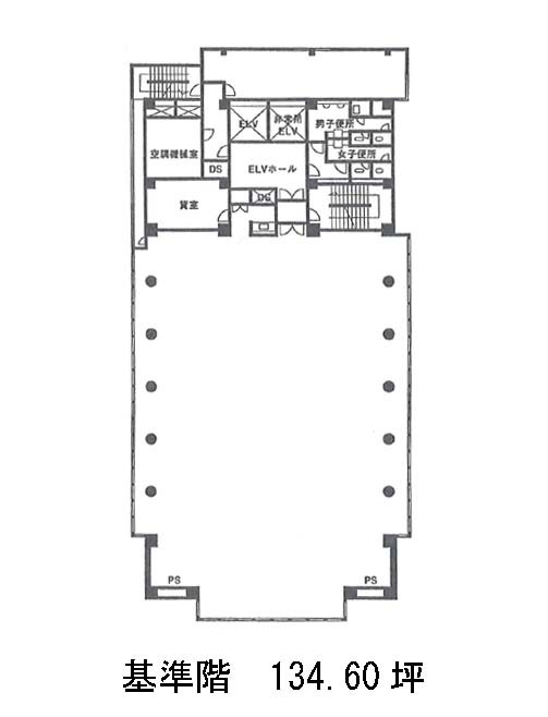
| 9 | 134.60坪 | − | − | 募集終了 | − | − | − |


