杉木立ビルの貸事務所・賃貸オフィス情報
杉木立ビルの貸事務所・賃貸オフィス情報
杉木立ビル
- エレベーター
- 新耐震基準
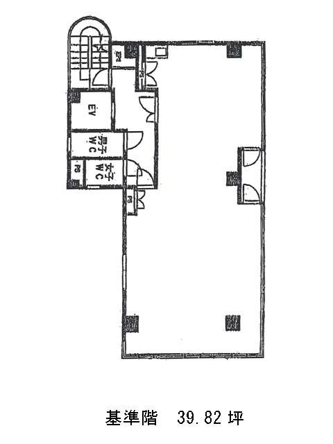
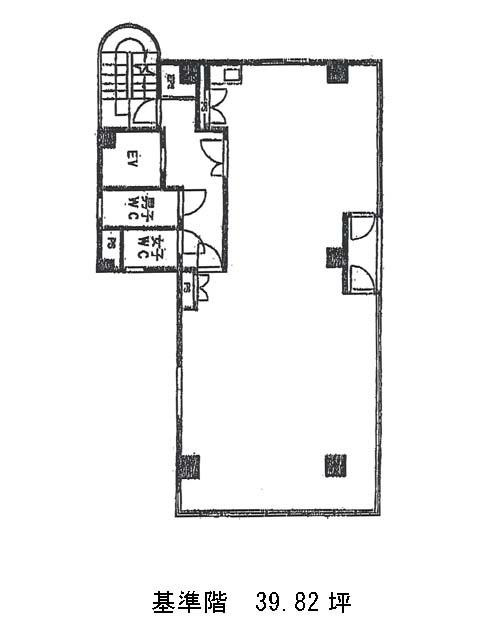
杉木立ビルの空室フロアリスト
| 階数 | 面積 | 賃料+共益費 | 保証金 | 入居時期 | 更新料 | 償却費 | 礼金 | 検討 | 平面図 | 詳細 |
|---|---|---|---|---|---|---|---|---|---|---|
| 6 | 39.82坪 |
657,030円16,500円/坪
|
477万円
|
即 | 新1ケ月 | 2ケ月 | なし |
杉木立ビルの物件情報
杉木立ビル(台東区浅草橋)は浅草橋駅徒歩2分、馬喰町駅徒歩8分、秋葉原駅徒歩9分の賃貸オフィスです。
杉木立ビルのアクセス
杉木立ビルの条件に近い物件
杉木立ビルの募集終了区画
| 階数 | 面積 | 賃料+共益費 | 保証金 | 入居時期 | 更新料 | 償却費 | 礼金 | 平面図 | 詳細 |
|---|---|---|---|---|---|---|---|---|---|
| 3 | 39.82坪 | − | − | 募集終了 | − | − | − | ||
| 4 | 39.82坪 | − | − | 募集終了 | − | − | − | ||
| 5 | 39.82坪 | − | − | 募集終了 | − | − | − | ||
| 7 | 39.82坪 | − | − | 募集終了 | − | − | − |


