現在、空室がございません。
柳北(リュウホク)ビルの貸事務所・賃貸オフィス情報
柳北(リュウホク)ビルの貸事務所・賃貸オフィス情報
柳北(リュウホク)ビル
- エレベーター
- 個別空調
- 新耐震基準
柳北(リュウホク)ビルの空室フロアリスト
現在、空室がございません。
柳北(リュウホク)ビルの物件情報
柳北(リュウホク)ビル(台東区浅草橋)は浅草橋駅徒歩6分、秋葉原駅徒歩9分、馬喰町駅徒歩11分の賃貸オフィスです。
柳北(リュウホク)ビルのアクセス
柳北(リュウホク)ビルの募集終了区画
| 階数 | 面積 | 賃料+共益費 | 保証金 | 入居時期 | 更新料 | 償却費 | 礼金 | 平面図 | 詳細 |
|---|---|---|---|---|---|---|---|---|---|
| 2 | 24.07坪 | − | − | 募集終了 | − | − | − | ||
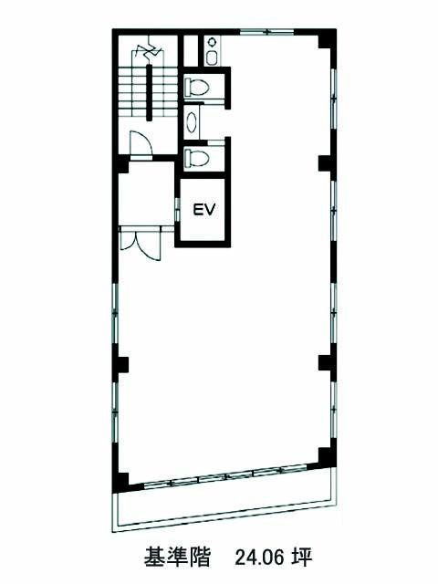
| 3 | 24.06坪 | − | − | 募集終了 | − | − | − | ||
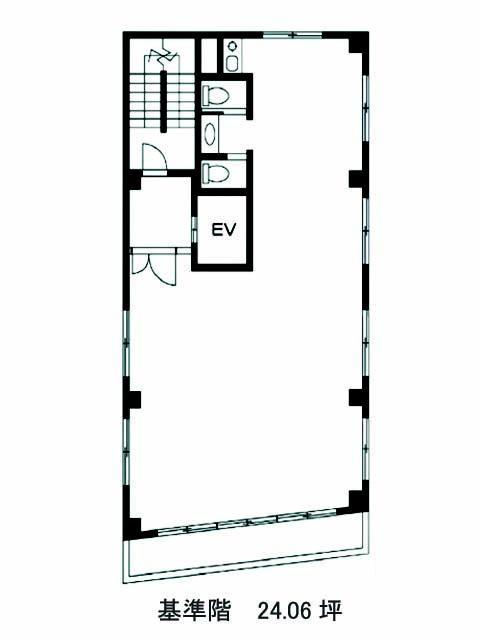
| 5 | 24.06坪 | − | − | 募集終了 | − | − | − |


