O・Kビルの貸事務所・賃貸オフィス情報
O・Kビルの貸事務所・賃貸オフィス情報
O・Kビル
- エレベーター
- 個別空調
- 駐車場
- 新耐震基準
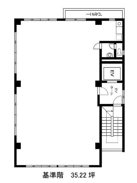
O・Kビルの空室フロアリスト
| 階数 | 面積 | 賃料+共益費 | 保証金 | 入居時期 | 更新料 | 償却費 | 礼金 | 検討 | 平面図 | 詳細 |
|---|---|---|---|---|---|---|---|---|---|---|
| 4 | 35.22坪 |
426,162円12,100円/坪
|
253万円
|
2026年5月中旬 | 新1ケ月 | なし | 2ケ月 |
O・Kビルの物件情報
O・Kビル(台東区鳥越)は新御徒町駅徒歩8分、蔵前駅徒歩8分、浅草橋駅徒歩10分の賃貸オフィスです。
O・Kビルのアクセス
O・Kビルの条件に近い物件
O・Kビルの募集終了区画
| 階数 | 面積 | 賃料+共益費 | 保証金 | 入居時期 | 更新料 | 償却費 | 礼金 | 平面図 | 詳細 |
|---|---|---|---|---|---|---|---|---|---|
| 2 | 35.22坪 | − | − | 募集終了 | − | − | − | ||
| 3 | 35.22坪 | − | − | 募集終了 | − | − | − |


