明海京橋ビルの貸事務所・賃貸オフィス情報
明海京橋ビルの貸事務所・賃貸オフィス情報
明海京橋ビル
- エレベーター
- 個別空調
- 新耐震基準
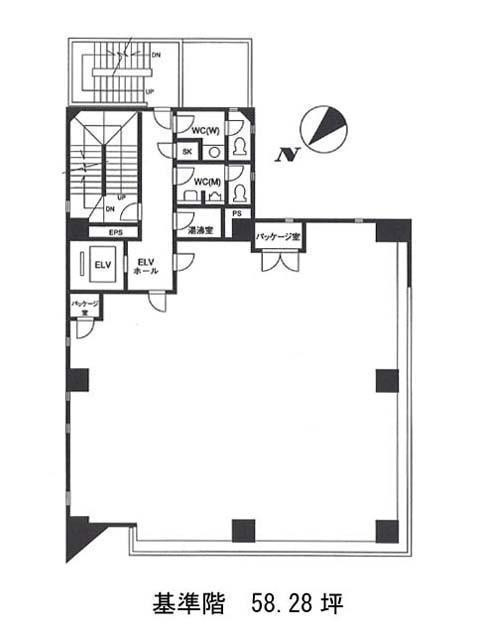
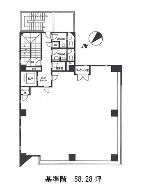
明海京橋ビルの空室フロアリスト
| 階数 | 面積 | 賃料+共益費 | 保証金 | 入居時期 | 更新料 | 償却費 | 礼金 | 検討 | 平面図 | 詳細 |
|---|---|---|---|---|---|---|---|---|---|---|
| 5 | 58.28坪 |
1,282,160円22,000円/坪
|
990万円
|
即 | なし | なし | なし |
明海京橋ビルの物件情報
明海京橋ビル(中央区京橋)は宝町駅徒歩2分、京橋駅徒歩4分、八丁堀駅徒歩6分の賃貸オフィスです。
明海京橋ビルのアクセス
明海京橋ビルの条件に近い物件
明海京橋ビルの募集終了区画
| 階数 | 面積 | 賃料+共益費 | 保証金 | 入居時期 | 更新料 | 償却費 | 礼金 | 平面図 | 詳細 |
|---|---|---|---|---|---|---|---|---|---|
| 1 | 36.26坪 | − | − | 募集終了 | − | − | − | ||
| 2 | 58.28坪 | − | − | 募集終了 | − | − | − | ||
| 3 | 58.28坪 | − | − | 募集終了 | − | − | − | ||
| 4 | 58.28坪 | − | − | 募集終了 | − | − | − | ||
| 6 | 58.28坪 | − | − | 募集終了 | − | − | − | ||
| 7 | 58.28坪 | − | − | 募集終了 | − | − | − | ||
| 7 | 16.73坪 | − | − | 募集終了 | − | − | − | ||
| 8 | 58.28坪 | − | − | 募集終了 | − | − | − |


