エムジー小伝馬町の貸事務所・賃貸オフィス情報
エムジー小伝馬町の貸事務所・賃貸オフィス情報
エムジー小伝馬町
- 物件番号
- 650-00063
- 所在地
- 東京都中央区日本橋小伝馬町7-10
- 竣工
- 1992年6月
- 規模
- 地上8階/地下1階
- エレベーター
- 個別空調
- 新耐震基準
エムジー小伝馬町の空室フロアリスト
| 階数 | 面積 | 賃料+共益費 | 保証金 | 入居時期 | 更新料 | 償却費 | 礼金 | 検討 | 平面図 | 詳細 |
|---|---|---|---|---|---|---|---|---|---|---|
| 地下1 | 24.71坪 |
366,943円14,850円/坪
|
155万円
|
即 | 新1ケ月 | 2ケ月 | なし | |||
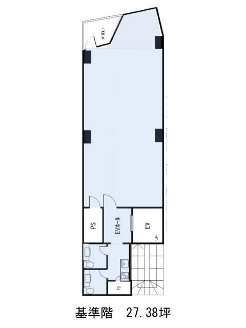
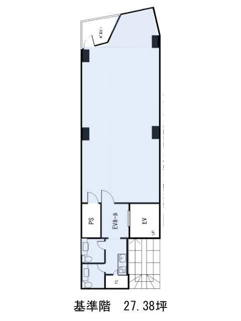
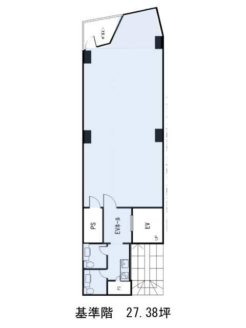
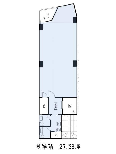
| 4 | 27.38坪 |
481,888円17,600円/坪
|
205万円
|
2026年7月下旬 | 新1ケ月 | 2ケ月 | なし | |||
| 7 | 27.38坪 |
481,888円17,600円/坪
|
205万円
|
2026年3月中旬 | 新1ケ月 | 2ケ月 | なし |
エムジー小伝馬町の物件情報
エムジー小伝馬町(中央区日本橋小伝馬町)は小伝馬町駅徒歩3分、馬喰町駅徒歩5分、馬喰横山駅徒歩7分の賃貸オフィスです。
エムジー小伝馬町のアクセス
エムジー小伝馬町の募集終了区画
| 階数 | 面積 | 賃料+共益費 | 保証金 | 入居時期 | 更新料 | 償却費 | 礼金 | 平面図 | 詳細 |
|---|---|---|---|---|---|---|---|---|---|
| 2 | 26.65坪 | − | − | 募集終了 | − | − | − | ||
| 3 | 27.38坪 | − | − | 募集終了 | − | − | − | ||
| 5 | 27.38坪 | − | − | 募集終了 | − | − | − | ||
| 6 | 27.38坪 | − | − | 募集終了 | − | − | − | ||
| 8 | 24.74坪 | − | − | 募集終了 | − | − | − |


