FORECAST人形町PLACEの貸事務所・賃貸オフィス情報
FORECAST人形町PLACEの貸事務所・賃貸オフィス情報
FORECAST人形町PLACE
- エレベーター
- 個別空調
- 新耐震基準
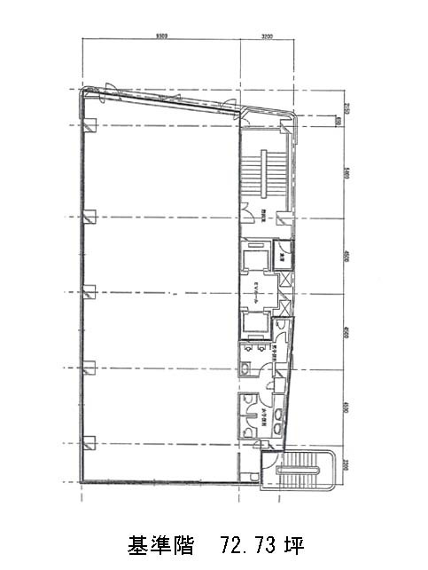
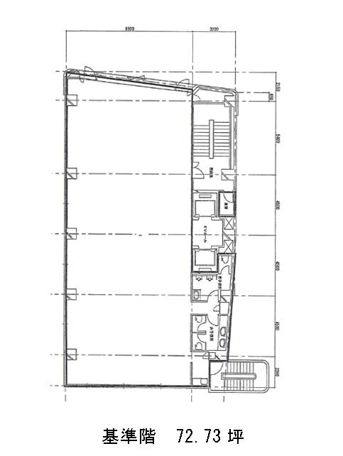
FORECAST人形町PLACEの空室フロアリスト
| 階数 | 面積 | 賃料+共益費 | 保証金 | 入居時期 | 更新料 | 償却費 | 礼金 | 検討 | 平面図 | 詳細 |
|---|---|---|---|---|---|---|---|---|---|---|
| 3 | 72.73坪 |
応相談応相談
|
応相談
|
即 | なし | なし | なし |
FORECAST人形町PLACEの物件情報
FORECAST人形町PLACE(中央区日本橋人形町)は人形町駅徒歩1分、水天宮前駅徒歩5分、小伝馬町駅徒歩9分の賃貸オフィスです。
FORECAST人形町PLACEのアクセス
FORECAST人形町PLACEの募集終了区画
| 階数 | 面積 | 賃料+共益費 | 保証金 | 入居時期 | 更新料 | 償却費 | 礼金 | 平面図 | 詳細 |
|---|---|---|---|---|---|---|---|---|---|
| 1 | 55.94坪 | − | − | 募集終了 | − | − | − | ||
| 2 | 72.73坪 | − | − | 募集終了 | − | − | − | ||
| 4 | 72.73坪 | − | − | 募集終了 | − | − | − | ||
| 5 | 72.73坪 | − | − | 募集終了 | − | − | − | ||
| 6 | 72.73坪 | − | − | 募集終了 | − | − | − | ||
| 7 | 72.73坪 | − | − | 募集終了 | − | − | − | ||
| 8 | 72.73坪 | − | − | 募集終了 | − | − | − |


