現在、空室がございません。
ENOX人形町ビルの貸事務所・賃貸オフィス情報
ENOX人形町ビルの貸事務所・賃貸オフィス情報
ENOX人形町ビル
- 物件番号
- 652-00046
- 所在地
- 東京都中央区日本橋人形町2-10-4
- 竣工
- 1978年2月
- 規模
- 地上5階
- 個別空調
- 旧耐震基準
ENOX人形町ビルの空室フロアリスト
現在、空室がございません。
ENOX人形町ビルの物件情報
ENOX人形町ビル(中央区日本橋人形町)は人形町駅徒歩2分、水天宮前駅徒歩4分、浜町駅徒歩7分の賃貸オフィスです。
ENOX人形町ビルのアクセス
ENOX人形町ビルの募集終了区画
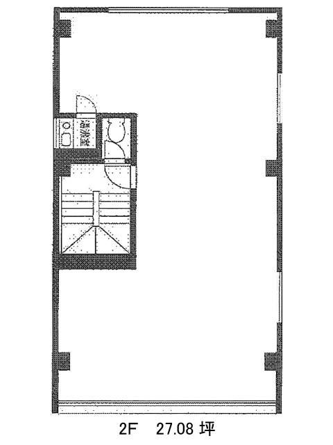
| 階数 | 面積 | 賃料+共益費 | 保証金 | 入居時期 | 更新料 | 償却費 | 礼金 | 平面図 | 詳細 |
|---|---|---|---|---|---|---|---|---|---|
| 1 | 26.55坪 | − | − | 募集終了 | − | − | − | ||
| 2 | 27.08坪 | − | − | 募集終了 | − | − | − | ||
| 3 | 30.01坪 | − | − | 募集終了 | − | − | − |


