浜町プログレスビルの貸事務所・賃貸オフィス情報
浜町プログレスビルの貸事務所・賃貸オフィス情報
浜町プログレスビル
- 物件番号
- 657-00033
- 所在地
- 東京都中央区日本橋浜町2-33-7
- 竣工
- 1994年3月
- 規模
- 地上7階/地下1階
- エレベーター
- 新耐震基準
浜町プログレスビルの空室フロアリスト
| 階数 | 面積 | 賃料+共益費 | 保証金 | 入居時期 | 更新料 | 償却費 | 礼金 | 検討 | 平面図 | 詳細 |
|---|---|---|---|---|---|---|---|---|---|---|
| 6 | 15.71坪 |
216,012円13,750円/坪
|
94万円
|
2026年2月上旬 | 新1ケ月 | なし | なし |
浜町プログレスビルの物件情報
浜町プログレスビル(中央区日本橋浜町)は浜町駅徒歩2分、東日本橋駅徒歩7分、馬喰横山駅徒歩7分の賃貸オフィスです。
浜町プログレスビルのアクセス
浜町プログレスビルの募集終了区画
| 階数 | 面積 | 賃料+共益費 | 保証金 | 入居時期 | 更新料 | 償却費 | 礼金 | 平面図 | 詳細 |
|---|---|---|---|---|---|---|---|---|---|
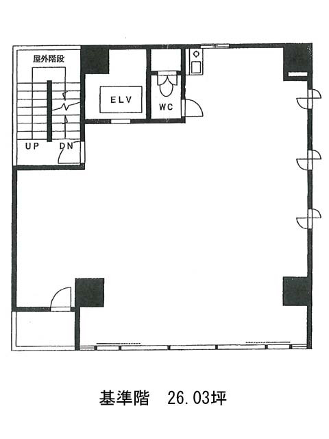
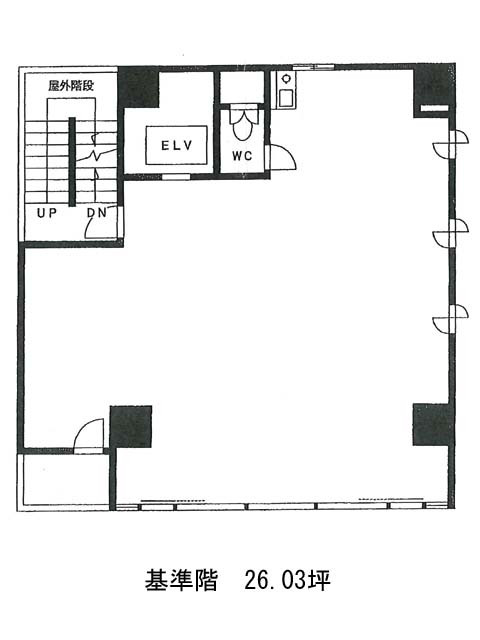
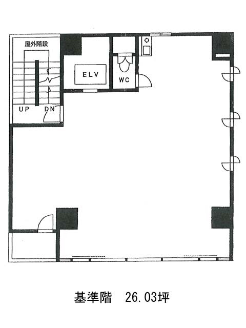
| 2 | 26.03坪 | − | − | 募集終了 | − | − | − | ||
| 3 | 26.03坪 | − | − | 募集終了 | − | − | − | ||
| 4 | 26.03坪 | − | − | 募集終了 | − | − | − | ||
| 5 | 21.32坪 | − | − | 募集終了 | − | − | − |


