現在、空室がございません。
小暮商店ビルの貸事務所・賃貸オフィス情報
小暮商店ビルの貸事務所・賃貸オフィス情報
小暮商店ビル
- 物件番号
- 662-00212
- 所在地
- 東京都中央区日本橋蛎殻町2-8-8
- 竣工
- 2022年9月
- 規模
- 地上4階
- エレベーター
- 新耐震基準
小暮商店ビルの空室フロアリスト
現在、空室がございません。
小暮商店ビルの物件情報
小暮商店ビル(中央区日本橋蛎殻町)は水天宮前駅徒歩4分、人形町駅徒歩7分、浜町駅徒歩10分の賃貸オフィスです。
小暮商店ビルのアクセス
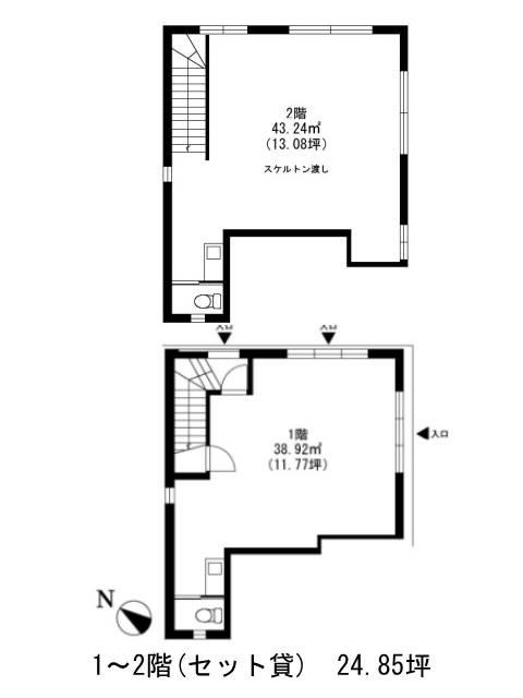
小暮商店ビルの募集終了区画
| 階数 | 面積 | 賃料+共益費 | 保証金 | 入居時期 | 更新料 | 償却費 | 礼金 | 平面図 | 詳細 |
|---|---|---|---|---|---|---|---|---|---|
| 1-2 | 24.85坪 | − | − | 募集終了 | − | − | − |


