NOVEL WORK 京橋の貸事務所・賃貸オフィス情報
NOVEL WORK 京橋の貸事務所・賃貸オフィス情報
NOVEL WORK 京橋
- エレベーター
- 個別空調
- 新耐震基準
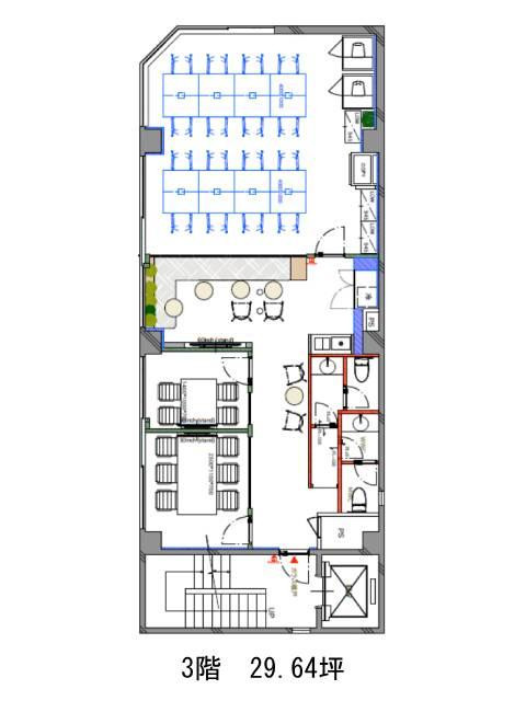
NOVEL WORK 京橋の空室フロアリスト
| 階数 | 面積 | 賃料+共益費 | 保証金 | 入居時期 | 更新料 | 償却費 | 礼金 | 検討 | 平面図 | 詳細 |
|---|---|---|---|---|---|---|---|---|---|---|
| 1 | 24.89坪 |
780,301円31,350円/坪
|
応相談
|
相談 | なし | なし | なし | |||
| 2 | 29.64坪 |
929,214円31,350円/坪
|
応相談
|
相談 | なし | なし | なし | |||
| 3 | 29.64坪 |
929,214円31,350円/坪
|
応相談
|
相談 | なし | なし | なし |
NOVEL WORK 京橋の物件情報
NOVEL WORK 京橋(中央区八丁堀)は宝町駅徒歩4分、八丁堀駅徒歩5分、京橋駅徒歩7分の賃貸オフィスです。
NOVEL WORK 京橋のアクセス
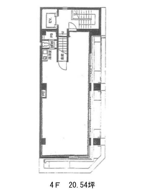
NOVEL WORK 京橋の募集終了区画
| 階数 | 面積 | 賃料+共益費 | 保証金 | 入居時期 | 更新料 | 償却費 | 礼金 | 平面図 | 詳細 |
|---|---|---|---|---|---|---|---|---|---|
| 4 | 20.54坪 | − | − | 募集終了 | − | − | − | ||
| 4 | 20.65坪 | − | − | 募集終了 | − | − | − |


