KHK池袋ビルの貸事務所・賃貸オフィス情報
KHK池袋ビルの貸事務所・賃貸オフィス情報
KHK池袋ビル
- エレベーター
- 個別空調
- 駐車場
- 新耐震基準
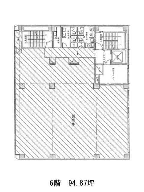
KHK池袋ビルの空室フロアリスト
| 階数 | 面積 | 賃料+共益費 | 保証金 | 入居時期 | 更新料 | 償却費 | 礼金 | 検討 | 平面図 | 詳細 |
|---|---|---|---|---|---|---|---|---|---|---|
| 6 | 94.87坪 |
応相談応相談
|
応相談
|
2026年9月上旬 | なし | なし | なし |
KHK池袋ビルの物件情報
KHK池袋ビル(豊島区南池袋)は池袋駅徒歩4分、東池袋駅徒歩5分、東池袋四丁目駅徒歩8分の賃貸オフィスです。
KHK池袋ビルのアクセス
KHK池袋ビルの条件に近い物件
KHK池袋ビルの募集終了区画
| 階数 | 面積 | 賃料+共益費 | 保証金 | 入居時期 | 更新料 | 償却費 | 礼金 | 平面図 | 詳細 |
|---|---|---|---|---|---|---|---|---|---|
| 3 | 82.16坪 | − | − | 募集終了 | − | − | − | ||
| 4 | 94.86坪 | − | − | 募集終了 | − | − | − | ||
| 5 | 94.87坪 | − | − | 募集終了 | − | − | − |


