東神田ビル7階の貸事務所・賃貸オフィス情報
東神田ビル7階の賃貸オフィス・貸事務所情報
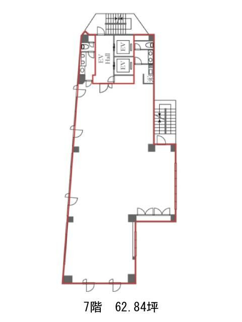
東神田ビルのフロア情報
募集階数
7階
面積
62.84坪
賃料+共益費
応相談
応相談
保証金
応相談
入居時期
2026年8月上旬
更新料
なし
償却費
なし
礼金
なし
東神田ビル
- 物件番号
- 421-00111
- 所在地
- 東京都千代田区東神田2-6-5
- 竣工年
- 1991年8月
- 規模
- 地上8階/地下1階
- エレベーター
- 個別空調
- 男女別トイレ
- 駐車場
- 新耐震基準
東神田ビルのフロア情報
募集階数
7階
面積
62.84坪
賃料+共益費
応相談
応相談
保証金
応相談
入居時期
2026年8月上旬
更新料
なし
償却費
なし
礼金
なし
東神田ビルの物件情報
東神田ビル(千代田区東神田)は馬喰町駅徒歩5分、岩本町駅徒歩6分、浅草橋駅徒歩7分の賃貸オフィスです。
東神田ビルのアクセス
東神田ビルのテナント募集中区画
| 階数 | 面積 | 賃料+共益費 | 保証金 | 入居時期 | 検討 | 図面 | 詳細 |
|---|---|---|---|---|---|---|---|
| 7 | 62.84坪 |
応相談応相談
|
応相談
|
2026年8月上旬 |


