新川ダイユウビル2階の貸事務所・賃貸オフィス情報
新川ダイユウビル2階の賃貸オフィス・貸事務所情報
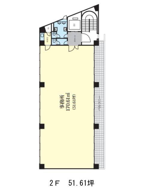
新川ダイユウビルのフロア情報
募集階数
2階
面積
51.61坪
賃料+共益費
800,473円
15,510円/坪
保証金
273万円
入居時期
2026年7月
更新料
新1ケ月
償却費
1ケ月
礼金
なし
新川ダイユウビル
- 物件番号
- 421-00078
- 所在地
- 東京都千代田区東神田1-10-4
- 竣工年
- 1972年4月
- 規模
- 地上10階/地下1階
- エレベーター
- 個別空調
- 男女別トイレ
- 駐車場
- 旧耐震基準
新川ダイユウビルのフロア情報
募集階数
2階
面積
51.61坪
賃料+共益費
800,473円
15,510円/坪
保証金
273万円
入居時期
2026年7月
更新料
新1ケ月
償却費
1ケ月
礼金
なし
新川ダイユウビルの物件情報
新川ダイユウビル(千代田区東神田)は岩本町駅徒歩5分、馬喰町駅徒歩5分、馬喰横山駅徒歩7分の賃貸オフィスです。
新川ダイユウビルのアクセス
新川ダイユウビルのテナント募集中区画
| 階数 | 面積 | 賃料+共益費 | 保証金 | 入居時期 | 検討 | 図面 | 詳細 |
|---|---|---|---|---|---|---|---|
| 2 | 51.61坪 |
800,473円15,510円/坪
|
273万円
|
2026年7月 |


