Nビル9階の貸事務所・賃貸オフィス情報
Nビル9階の賃貸オフィス・貸事務所情報
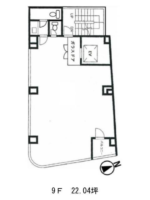
Nビルのフロア情報
募集階数
9階
面積
22.04坪
賃料+共益費
400,026円
18,150円/坪
保証金
171万円
入居時期
2026年3月上旬
更新料
新1ケ月
償却費
2ケ月
礼金
なし
Nビル
- エレベーター
- 個別空調
- 男女共用トイレ
- 駐車場
- 新耐震基準
Nビルのフロア情報
募集階数
9階
面積
22.04坪
賃料+共益費
400,026円
18,150円/坪
保証金
171万円
入居時期
2026年3月上旬
更新料
新1ケ月
償却費
2ケ月
礼金
なし
Nビルの物件情報
Nビル(中央区東日本橋)は馬喰町駅徒歩5分、浅草橋駅徒歩5分、東日本橋駅徒歩6分の賃貸オフィスです。
Nビルのアクセス
Nビルのテナント募集中区画
| 階数 | 面積 | 賃料+共益費 | 保証金 | 入居時期 | 検討 | 図面 | 詳細 |
|---|---|---|---|---|---|---|---|
| 9 | 22.04坪 |
400,026円18,150円/坪
|
171万円
|
2026年3月上旬 |


