スタッフが仲良くミーティングしている 泡 泡

STAFF BLOG

スタッフが仲良くミーティングしている
微笑みながら仕事をする女性 泡

新大橋通り沿い×角地の存在感|《RBM築地スクエア》で実現する機能的オフィス

RBM築地スクエアのメイン画像

「RBM築地スクエア」は、八丁堀駅と新富町駅から徒歩4分と、2駅複数路線が利用可能な利便性の高い立地です。
新大橋通り沿いの角地に位置し、ガラス面を活かしたファサードは視認性に優れ、来訪者にも分かりやすいロケーションです。
周辺には飲食店やコンビニ、金融機関も揃い、日常業務を支える環境が整っています。

この物件の関連画像を見る

OTHER PHOTO
RBM築地スクエアのエントランス エントランス
RBM築地スクエアのエントランス エントランス
RBM築地スクエアのホール ホール
RBM築地スクエアのエレベーター エレベーター

この物件の間取り情報を見る

FLOOR MAP

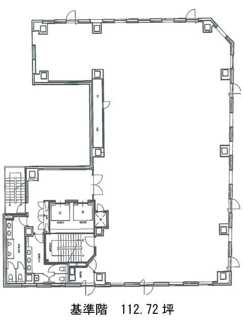
基準階は112.72坪。L字型ながらメインスペースは広く確保されており、柱位置も壁面寄りでレイアウト効率は良好です。執務室を中心に、会議室やリフレッシュスペースをゾーニングしやすい形状といえます。
水回り(男女別トイレ・給湯室)は室外共用部にまとまり、執務ゾーンの有効面積を最大化。EVホールからの動線も整理されており、来客エリアと執務エリアの分離もしやすい構成です。

建物情報の詳細を確認する

INFORMATION

名称RBM築地スクエア

住所東京都中央区新富1-18-8

竣工2003年11月

規模地上9階/地下1階

構造S造

交通JR京葉線・東京メトロ日比谷線「八丁堀駅」徒歩4分
東京メトロ有楽町線「新富町駅」徒歩4分

設備等エレベーター2台・OAフロア・個別空調・男女別トイレ・機械警備・駐車場

2駅徒歩4分×角地立地|視認性に優れた中央区オフィス特集

「RBM築地スクエア」は、八丁堀駅・新富町駅ともに徒歩4分というアクセス性に優れたポジションに立地するオフィスビルです。
新大橋通り沿いの角地に位置し、ガラスを基調とした外観は視認性が高く、来訪者への案内もしやすいロケーションです。
石張りで統一されたエントランスホールは落ち着きと品格を感じさせ、企業の第一印象を高めてくれます。

基準階は112.72坪。L字型ながらも無駄の少ないレイアウトが可能で、執務スペースを広く確保しつつ、会議室や役員室、リフレッシュエリアなどをバランス良く配置できます。
水回り(男女別トイレ・給湯室)は室外共用部に集約されており、室内のレイアウト自由度が高い点も魅力です。

中央区エリアで本社機能を構えたい企業様や、営業拠点として交通利便性を重視される企業様に適した物件で、落ち着きある周辺環境と、視認性の高い立地を両立したバランスの良いオフィスビルといえるでしょう。

他のおすすめ物件を見る

OTHER

「CIRCLES日本橋浜町」は2024年7月竣工の三菱地所ブランドによる新築オフィスビル。
都営新宿線・浜町駅から徒歩2分という好アクセスのポジションにあり、「人形町」「馬喰横山」「東日本橋」といった複数駅も徒歩圏内です。
外観はガラスを基調にしたモダンなデザインで、街並みの中でも存在感がありつつ街に溶け込むスタイリッシュさ。周辺には飲食・カフェ・ショッピングスポットも充実しており、働く毎日を後押しします。

2026.01.08 中央区

御成門駅出口すぐ、御成門交差点角地に立つ菱進御成門ビル。2015年竣工の外観はガラスウォールと洗練されたマテリアルで構成されており、通りに映える存在感があります。
1階にコンビニを備え、日常的な利便性も確保。都営三田線「御成門駅」が徒歩1分、他にも「大門」「神谷町」「新橋」など複数駅が使えるアクセスの良さで、通勤・来客ともにストレスが少ない立地です。

2025.12.11 港区