BIC赤坂ビルの貸事務所・賃貸オフィス情報
BIC赤坂ビルの貸事務所・賃貸オフィス情報
BIC赤坂ビル
- 物件番号
- 133-00184
- 所在地
- 東京都港区赤坂3-9-18
- 竣工
- 1980年7月
- 規模
- 地上9階/地下1階
- エレベーター
- 個別空調
- 新耐震基準
BIC赤坂ビルの空室フロアリスト
| 階数 | 面積 | 賃料+共益費 | 保証金 | 入居時期 | 更新料 | 償却費 | 礼金 | 検討 | 平面図 | 詳細 |
|---|---|---|---|---|---|---|---|---|---|---|
| 5 | 34.34坪 |
1,037,273円30,206円/坪
|
565万円
|
即 | なし | なし | なし | |||
| 8 | 34.34坪 |
1,037,273円30,206円/坪
|
565万円
|
即 | なし | なし | なし |
BIC赤坂ビルの物件情報
BIC赤坂ビル(港区赤坂)は赤坂見附駅徒歩1分、永田町駅徒歩3分、赤坂駅徒歩8分の賃貸オフィスです。
BIC赤坂ビルのアクセス
BIC赤坂ビルの募集終了区画
| 階数 | 面積 | 賃料+共益費 | 保証金 | 入居時期 | 更新料 | 償却費 | 礼金 | 平面図 | 詳細 |
|---|---|---|---|---|---|---|---|---|---|
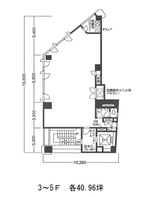
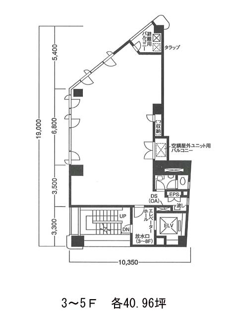
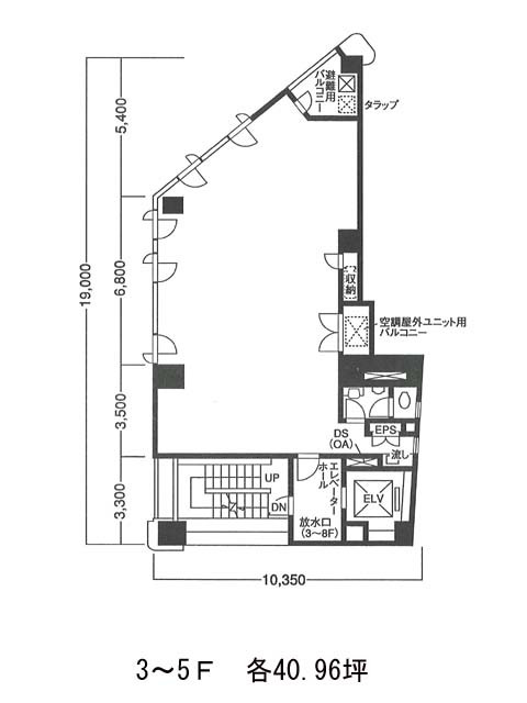
| 3 | 40.96坪 | − | − | 募集終了 | − | − | − | ||
| 5 | 40.96坪 | − | − | 募集終了 | − | − | − | ||
| 8 | 40.96坪 | − | − | 募集終了 | − | − | − |


