Inter ACTビルの貸事務所・賃貸オフィス情報
Inter ACTビルの貸事務所・賃貸オフィス情報
Inter ACTビル
- 物件番号
- 397-00070
- 所在地
- 東京都千代田区神田佐久間町3-21-1
- 竣工
- 1987年7月
- 規模
- 地上6階/地下1階
- エレベーター
- 個別空調
- 駐車場
- 新耐震基準
Inter ACTビルの空室フロアリスト
| 階数 | 面積 | 賃料+共益費 | 保証金 | 入居時期 | 更新料 | 償却費 | 礼金 | 検討 | 平面図 | 詳細 |
|---|---|---|---|---|---|---|---|---|---|---|
| 3 | 27.25坪 |
449,625円16,500円/坪
|
220万円
|
2026年3月上旬 | 新1ケ月 | 1ケ月 | 1ケ月 |
Inter ACTビルの物件情報
Inter ACTビル(千代田区神田佐久間町)は秋葉原駅徒歩4分、岩本町駅徒歩6分、浅草橋駅徒歩7分の賃貸オフィスです。
Inter ACTビルのアクセス
Inter ACTビルの募集終了区画
| 階数 | 面積 | 賃料+共益費 | 保証金 | 入居時期 | 更新料 | 償却費 | 礼金 | 平面図 | 詳細 |
|---|---|---|---|---|---|---|---|---|---|
| 2 | 25.86坪 | − | − | 募集終了 | − | − | − | ||
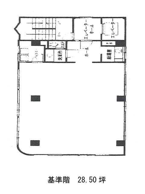
| 4 | 28.50坪 | − | − | 募集終了 | − | − | − | ||
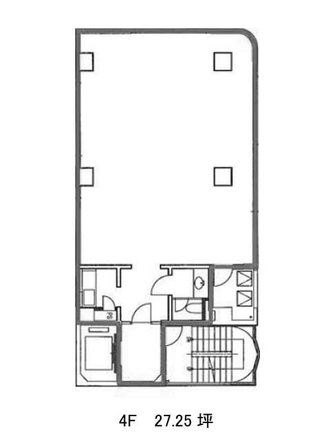
| 4 | 27.25坪 | − | − | 募集終了 | − | − | − | ||
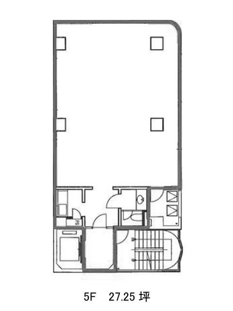
| 5 | 27.25坪 | − | − | 募集終了 | − | − | − | ||
| 6 | 25.86坪 | − | − | 募集終了 | − | − | − |


