現在、空室がございません。
内田ビルの貸事務所・賃貸オフィス情報
内田ビルの貸事務所・賃貸オフィス情報
内田ビル
- エレベーター
- 個別空調
- 旧耐震基準
内田ビルの空室フロアリスト
現在、空室がございません。
内田ビルの物件情報
内田ビル(台東区浅草橋)は浅草橋駅徒歩4分、秋葉原駅徒歩7分、馬喰町駅徒歩10分の賃貸オフィスです。
内田ビルのアクセス
内田ビルの募集終了区画
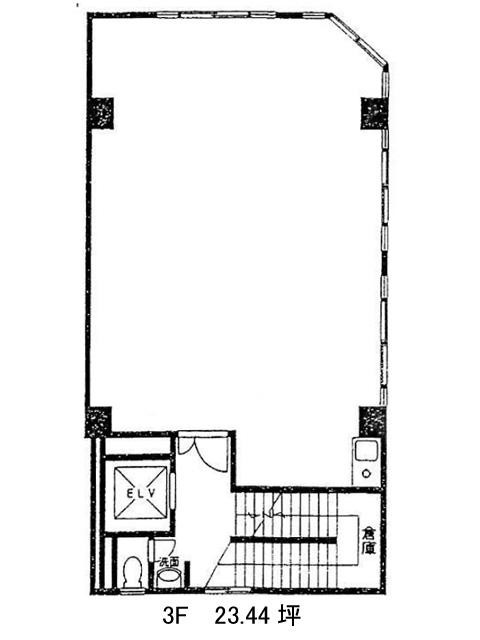
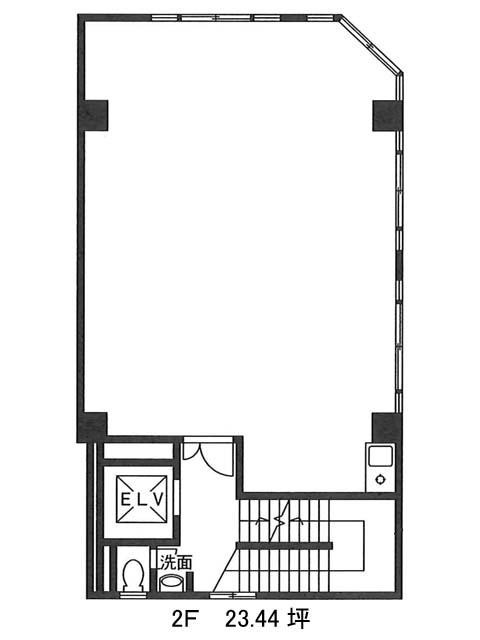
| 階数 | 面積 | 賃料+共益費 | 保証金 | 入居時期 | 更新料 | 償却費 | 礼金 | 平面図 | 詳細 |
|---|---|---|---|---|---|---|---|---|---|
| 2 | 23.44坪 | − | − | 募集終了 | − | − | − | ||
| 3 | 23.44坪 | − | − | 募集終了 | − | − | − | ||
| 4 | 16.00坪 | − | − | 募集終了 | − | − | − |


