0120-16-2331

【受付時間】平日 AM9:00〜PM7:00

メールでお問合せ
現在、空室がございません。

佐藤ビルの貸事務所・賃貸オフィス情報

佐藤ビルの貸事務所・賃貸オフィス情報

佐藤ビル

物件番号
570​-​00129
所在地
東京都台東区柳橋1-13-1
最寄駅
蔵前駅 10分
竣工
1980年10月
規模
地上5階
  • エレベーター
  • 旧耐震基準

佐藤ビルの空室フロアリスト

現在、空室がございません。

佐藤ビルの物件情報

佐藤ビル(台東区柳橋)は浅草橋駅徒歩1分、馬喰町駅徒歩5分、東日本橋駅徒歩8分の賃貸オフィスです。

佐藤ビルのアクセス

佐藤ビルの募集終了区画

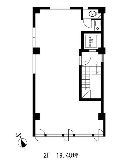
階数 面積 賃料+共益費 保証金 入居時期 更新料 償却費 礼金 平面図 詳細
2 19.48坪 募集終了

貸事務所・賃貸オフィスを最寄駅から探す

貸事務所・賃貸オフィスを最寄駅の沿線から探す

お問合せ このビルについて問い合わせる