現在、空室がございません。
名無しビル1の貸事務所・賃貸オフィス情報
名無しビル1の貸事務所・賃貸オフィス情報
名無しビル1
- エレベーター
- 耐震確認中
名無しビル1の空室フロアリスト
現在、空室がございません。
名無しビル1の物件情報
名無しビル1(台東区柳橋)は浅草橋駅徒歩1分、馬喰町駅徒歩5分、東日本橋駅徒歩7分の賃貸オフィスです。
名無しビル1のアクセス
名無しビル1の募集終了区画
| 階数 | 面積 | 賃料+共益費 | 保証金 | 入居時期 | 更新料 | 償却費 | 礼金 | 平面図 | 詳細 |
|---|---|---|---|---|---|---|---|---|---|
| 2 | 98.06坪 | − | − | 募集終了 | − | − | − | ||
| 2 | 311.60坪 | − | − | 募集終了 | − | − | − | ||
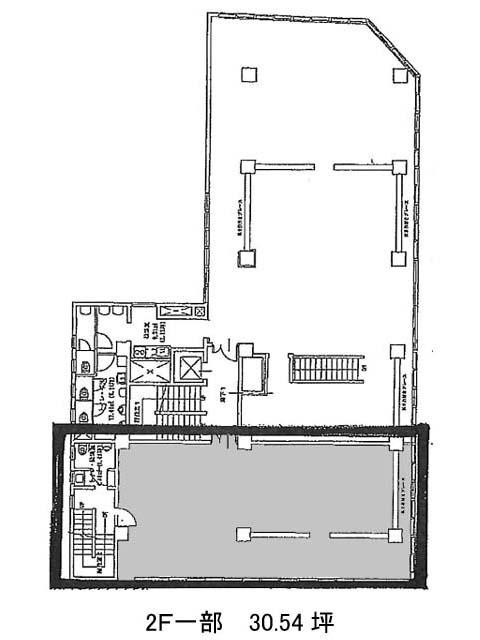
| 2 | 30.54坪 | − | − | 募集終了 | − | − | − | ||
| 3 | 213.54坪 | − | − | 募集終了 | − | − | − | ||
| 3 | 106.77坪 | − | − | 募集終了 | − | − | − | ||
| 4 | 106.77坪 | − | − | 募集終了 | − | − | − |


