東京プラスチック会館の貸事務所・賃貸オフィス情報
東京プラスチック会館の貸事務所・賃貸オフィス情報
東京プラスチック会館
- エレベーター
- 新耐震基準
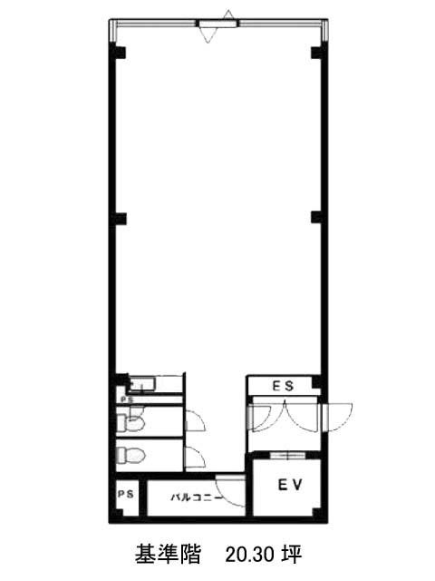
東京プラスチック会館の空室フロアリスト
| 階数 | 面積 | 賃料+共益費 | 保証金 | 入居時期 | 更新料 | 償却費 | 礼金 | 検討 | 平面図 | 詳細 |
|---|---|---|---|---|---|---|---|---|---|---|
| 5 | 20.30坪 |
302,500円14,902円/坪
|
200万円
|
2025年12月上旬 | 新1ケ月 | 2ケ月 | なし |
東京プラスチック会館の物件情報
東京プラスチック会館(中央区東日本橋)は馬喰町駅徒歩3分、浅草橋駅徒歩4分、東日本橋駅徒歩5分の賃貸オフィスです。
東京プラスチック会館のアクセス
東京プラスチック会館の募集終了区画
| 階数 | 面積 | 賃料+共益費 | 保証金 | 入居時期 | 更新料 | 償却費 | 礼金 | 平面図 | 詳細 |
|---|---|---|---|---|---|---|---|---|---|
| 1 | 15.41坪 | − | − | 募集終了 | − | − | − | ||
| 2 | 20.30坪 | − | − | 募集終了 | − | − | − | ||
| 3 | 20.30坪 | − | − | 募集終了 | − | − | − | ||
| 4 | 20.30坪 | − | − | 募集終了 | − | − | − | ||
| 6 | 20.30坪 | − | − | 募集終了 | − | − | − | ||
| 7 | 20.30坪 | − | − | 募集終了 | − | − | − | ||
| 8 | 20.30坪 | − | − | 募集終了 | − | − | − | ||
| 9 | 20.30坪 | − | − | 募集終了 | − | − | − |


