現在、空室がございません。
オフィスコオフィス日本橋横山町の貸事務所・賃貸オフィス情報
オフィスコオフィス日本橋横山町の貸事務所・賃貸オフィス情報
オフィスコオフィス日本橋横山町
- エレベーター
- 新耐震基準
オフィスコオフィス日本橋横山町の空室フロアリスト
現在、空室がございません。
オフィスコオフィス日本橋横山町の物件情報
オフィスコオフィス日本橋横山町(中央区日本橋横山町)は馬喰横山駅徒歩1分、馬喰町駅徒歩3分、東日本橋駅徒歩3分の賃貸オフィスです。
オフィスコオフィス日本橋横山町のアクセス
オフィスコオフィス日本橋横山町の募集終了区画
| 階数 | 面積 | 賃料+共益費 | 保証金 | 入居時期 | 更新料 | 償却費 | 礼金 | 平面図 | 詳細 |
|---|---|---|---|---|---|---|---|---|---|
| 1-2 | 30.36坪 | − | − | 募集終了 | − | − | − | ||
| 1-4 | 68.72坪 | − | − | 募集終了 | − | − | − | ||
| 2-4 | 51.54坪 | − | − | 募集終了 | − | − | − | ||
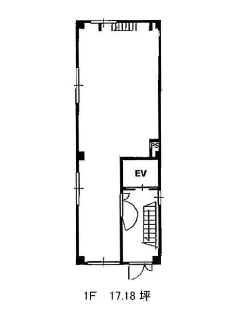
| 1 | 17.18坪 | − | − | 募集終了 | − | − | − | ||
| 2 | 17.18坪 | − | − | 募集終了 | − | − | − | ||
| 3 | 17.18坪 | − | − | 募集終了 | − | − | − | ||
| 4 | 17.18坪 | − | − | 募集終了 | − | − | − |


