東屋ビルの貸事務所・賃貸オフィス情報
東屋ビルの貸事務所・賃貸オフィス情報
東屋ビル
- 物件番号
- 650-00053
- 所在地
- 東京都中央区日本橋小伝馬町12-2
- 竣工
- 1985年3月
- 規模
- 地上10階
- エレベーター
- 個別空調
- 新耐震基準
東屋ビルの空室フロアリスト
| 階数 | 面積 | 賃料+共益費 | 保証金 | 入居時期 | 更新料 | 償却費 | 礼金 | 検討 | 平面図 | 詳細 |
|---|---|---|---|---|---|---|---|---|---|---|
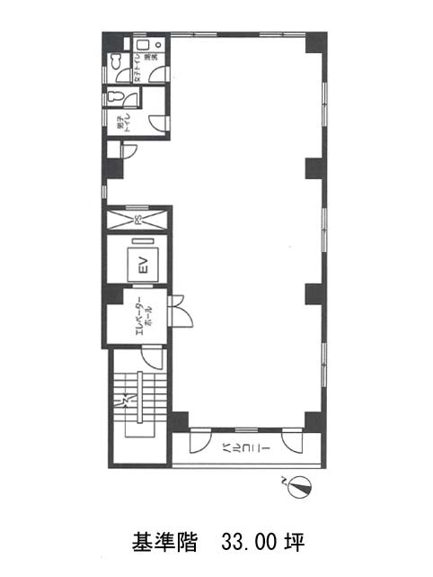
| 7 | 33.00坪 |
435,600円13,200円/坪
|
264万円
|
2026年3月上旬 | 新1ケ月 | 2ケ月 | なし |
東屋ビルの物件情報
東屋ビル(中央区日本橋小伝馬町)は小伝馬町駅徒歩1分、馬喰町駅徒歩5分、新日本橋駅徒歩6分の賃貸オフィスです。
東屋ビルのアクセス
東屋ビルの募集終了区画
| 階数 | 面積 | 賃料+共益費 | 保証金 | 入居時期 | 更新料 | 償却費 | 礼金 | 平面図 | 詳細 |
|---|---|---|---|---|---|---|---|---|---|
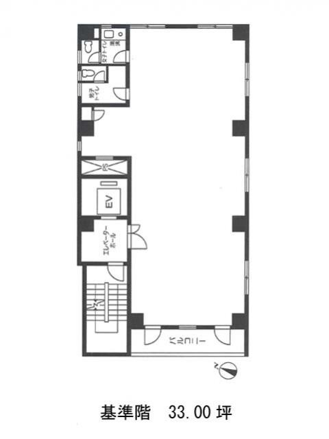
| 3 | 33.00坪 | − | − | 募集終了 | − | − | − | ||
| 4 | 33.00坪 | − | − | 募集終了 | − | − | − | ||
| 5 | 33.00坪 | − | − | 募集終了 | − | − | − | ||
| 6 | 33.00坪 | − | − | 募集終了 | − | − | − | ||
| 8 | 33.00坪 | − | − | 募集終了 | − | − | − | ||
| 8 | 33.00坪 | − | − | 募集終了 | − | − | − |


