TK人形町ビルの貸事務所・賃貸オフィス情報
TK人形町ビルの貸事務所・賃貸オフィス情報
TK人形町ビル
- 物件番号
- 652-00026
- 所在地
- 東京都中央区日本橋人形町1-18-5
- 竣工
- 1984年7月
- 規模
- 地上6階
- エレベーター
- 新耐震基準
TK人形町ビルの空室フロアリスト
| 階数 | 面積 | 賃料+共益費 | 保証金 | 入居時期 | 更新料 | 償却費 | 礼金 | 検討 | 平面図 | 詳細 |
|---|---|---|---|---|---|---|---|---|---|---|
| 6 | 16.00坪 |
307,014円19,188円/坪
|
81万円
|
即 | 新1ケ月 | 1ケ月 | なし |
TK人形町ビルの物件情報
TK人形町ビル(中央区日本橋人形町)は人形町駅徒歩1分、水天宮前駅徒歩4分、浜町駅徒歩9分の賃貸オフィスです。
TK人形町ビルのアクセス
TK人形町ビルの条件に近い物件
TK人形町ビルの募集終了区画
| 階数 | 面積 | 賃料+共益費 | 保証金 | 入居時期 | 更新料 | 償却費 | 礼金 | 平面図 | 詳細 |
|---|---|---|---|---|---|---|---|---|---|
| 1 | 24.69坪 | − | − | 募集終了 | − | − | − | ||
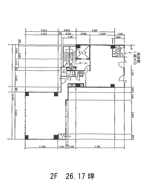
| 2 | 26.17坪 | − | − | 募集終了 | − | − | − | ||
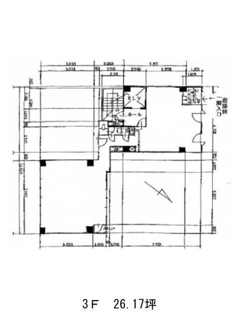
| 3 | 26.17坪 | − | − | 募集終了 | − | − | − |


